

- Prix
- 375 000 €
Maison neuve • Seclin
- Nom et prix
- Terrain à bâtir () • 375 000 €
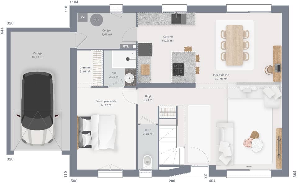
Seclin : maison F5 (145 m²) à vendre IDÉALEMENT SITUÉE - MAISON 5 PIÈCES NEUVE À vendre à 23 km de la frontière belge et à 9 km de Lille, votre agence Maisons France Confort Lille est heureuse de vous présenter cette maison de 5 pièces de 145 m² idéalement située dans Seclin (59113). Il s'agit d'une maison de 2 niveaux. Elle offre quatre chambres, une cuisine et deux salles de bains. La maison est neuve. Le terrain du bien s'étend sur 600 m². Elle est située dans un quartier recherché. On trouve plusieurs écoles (maternelle, élémentaire, primaire et lycée) à moins de 10 minutes à pied, tout comme une structure d'accueil pour la petite enfance. Niveau transports, il y a la gare Seclin dans un rayon de 1 km. Des autoroutes et les nationales N41 et N356 sont accessibles à moins de 10 km. On trouve une bibliothèque, des commerces, quatre boulangeries, un supermarché, un bureau de poste et deux épiceries à proximité. Le marché Place Stalingrad a lieu tous les lundis matin. Elle est proposée à l'achat pour 375 000 €. Contactez Sébastien RAVIART (tél : 06-46-26-20-72) pour plus d'informations sur la maison. Maisons France Confort Lille est là pour vous accompagner dans toutes vos démarches.





