

- Prix
- 215 000 €
Maison neuve • Noyon
- Nom et prix
- Terrain à bâtir () • 215 000 €
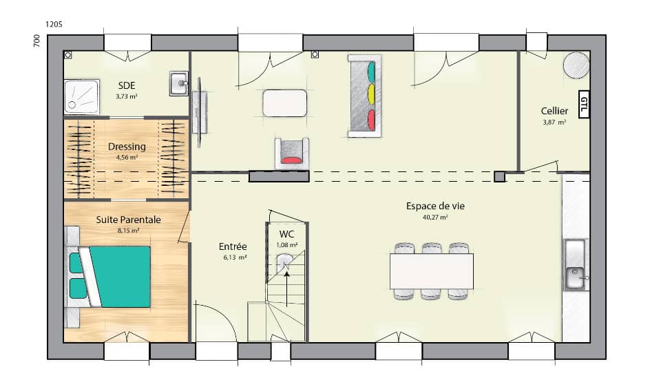
Venez concevoir votre maison. Exemple de projet maison de 89 m2 loi Carrez + garage Tous nos projets sont entièrement réalisés sur-mesure, de nombreuses prestations incluses: baies coulissantes en aluminium, volets roulants intégrés à la maçonnerie (non-apparents) motorisés. Entrée, cuisine, pièce de vie, cellier et pièces d'eau carrelés, maison prête à décorer, clef en main. Pompe à chaleur (classe énergétique A+), plancher chauffant RDC (et ETAGE), sèche-serviettes, plusieurs choix de menuiseries intérieures, construction en brique. RE 2020. Projet terrain + maison + viabilité publique. ZONE ANRU avec une TVA à 5.5% et possibilité d'avoir un PRET A TAUX ZERO. Pour tout renseignement contacter XAVIER de l'agence Maisons France Confort de COMPIEGNE : 06 16 27 53 27





