

- Prix
- 285 000 €
Maison neuve • Blérancourt
- Nom et prix
- Terrain à bâtir Blérancourt (02300) • 285 000 €
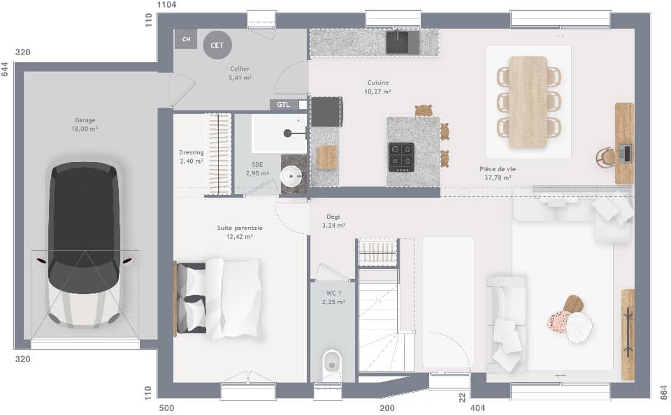
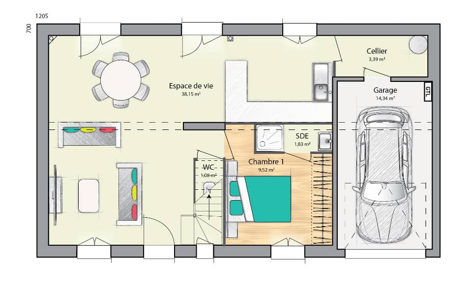
Terrain à bâtir situé à BLERANCOURT, d'une superficie de 978 m²,plat, idéalement situé, avec une belle façade de 27 ml. Exemple de projet maison avec des combles aménagés de 115 m² de surface habitable avec 4 chambres dont 1 suite parentale au rez de chaussée. 3 Chambres et 1 salle de bain à l'étage. Tous nos projets sont entièrement réalisés sur-mesure, de nombreuses prestations incluses: baies coulissantes en aluminium, volets roulants intégrés à la maçonnerie (non-apparents) motorisés. Entrée, cuisine, pièce de vie, cellier et pièces d'eau carrelés, maison prête à décorer, clef en main. Pompe à chaleur ou pompe à chaleur hybride (gaz) dernière génération (classe énergétique A+), plancher chauffant RDC (et ETAGE), sèche-serviettes, plusieurs choix de menuiseries intérieures, construction en brique. RE 2020. Projet terrain + maison + frais annexes. Pour tout renseignement contacter XAVIER de l'agence Maisons France Confort : 06 16 27 53 27





