

- Prix
- 320 000 €
Maison neuve • Bienville
- Nom et prix
- Terrain à bâtir () • 320 000 €
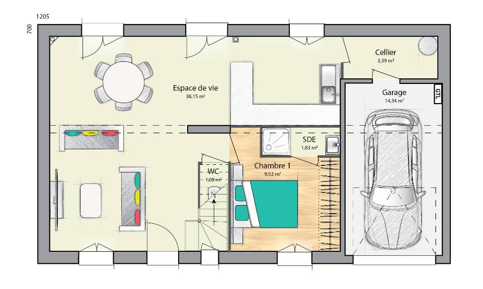
A 9 minutes de la Gare de Compiegne et 17 minutes en vélo . Nous vous proposons de devenir propriétaire d'une maison individuelle : -Plans personnalisés . -Prête à décorer ( carrelage inclus et salle d'eau équipée ) -Sécurisée par notre partenaire NEXHOME . -Intelligente et fonctionnelle ( Gestion depuis votre smartphone de vos volets , chauffages et luminaires). Projet de maison située sur un terrain de 401m² ,plat , viabilisé et clôturé , en retrait de rue , au calme . Commune avec école , cantine et périscolaire . PROJET COMPLET: Terrain + Maison + Frais Annexes Pour plus de renseignements , contactez XAVIER au 06 16 27 53 27





