

- Prix
- 350 000 €
Maison neuve • Lassigny
- Nom et prix
- Terrain à bâtir () • 350 000 €
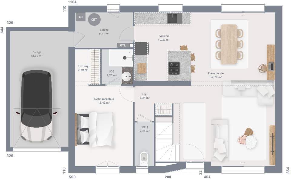
Venez Réaliser votre projet de Construction avec MAISONS FRANCE CONFORT sur terrain à bâtir entièrement viabilisé à LASSIGNY (60) d'une superficie de 884 m²,plat, idéalement situé, avec une belle façade de 28 ml Exemple de projet avec une maison moderne de 150 m² avec un garage Intégré. 5 chambres dont 2 suites parentales, 1 salle d'eau, 1 salle de bain. PROJET CLE EN MAINS: TERRAIN + MAISON + FRAIS ANNEXES XAVIER de l'agence Maisons France Confort se fera un plaisir de vous recevoir pour plus de renseignements. tel : 06 16 27 53 27.





