

- Prix
- 215 000 €
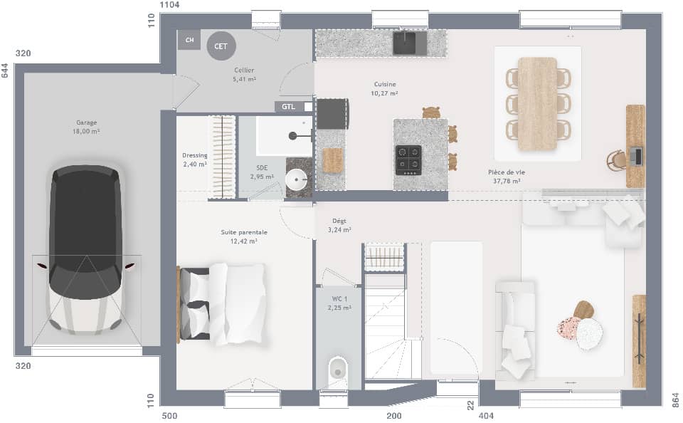
Maison neuve • Saint-Léger-aux-Bois
- Nom et prix
- Terrain à bâtir () • 215 000 €
Terrain à bâtir sur la commune de SAINT LEGER AUX BOIS, située à 15 minutes au nord de COMPIEGNE, avec une surface de 365 m². Exemple de projet maison de type Plain pied de 71 m2 loi Carrez avec un garage intégré. Tous nos projets sont entièrement réalisés sur-mesure, de nombreuses prestations incluses: baies coulissantes en aluminium, volets roulants intégrés à la maçonnerie (non-apparents) motorisés. Entrée, cuisine, pièce de vie, cellier et pièces d'eau carrelés, maison prête à décorer, clef en main. Pompe à chaleur ou pompe à chaleur hybride (gaz) dernière génération (classe énergétique A+), plancher chauffant RDC (et ETAGE), sèche-serviettes, plusieurs choix de menuiseries intérieures, construction en brique. RE 2020. Projet terrain + maison + frais annexes. Pour tout renseignement contacter XAVIER de l'agence Maisons France Confort au 06 16 27 53 27.





