

- Prix
- 127 000 €
Terrain • Verneuil-en-Halatte
- Nom et prix
- Terrain à bâtir () • 127 000 €
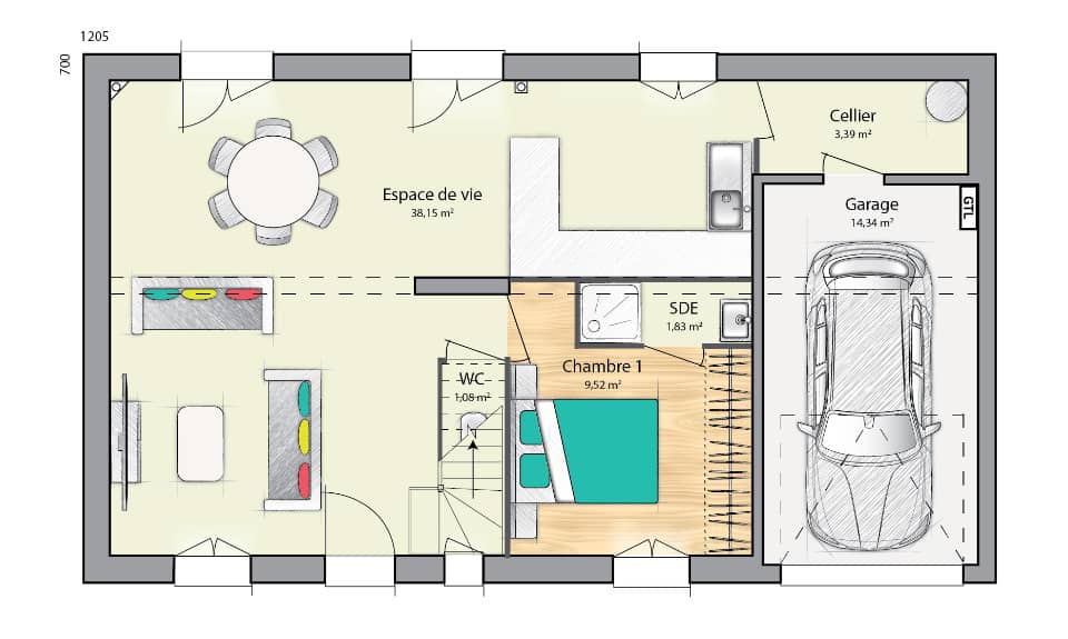
à seulement 13 minutes de la gare de Creil venez découvrir un terrain à Bâtir de 640 m² sur la commune de Verneuil en Halatte, dans un secteur prisé avec une façade sur rue de 21.00 ml. Nous vous proposons de devenir propriétaire d'une maison individuelle : -Plans personnalisés . -Prête à décorer ( carrelage inclus et salle d'eau équipée ) -Sécurisée par notre partenaire NEXHOME . -Intelligente et fonctionnelle ( Gestion depuis votre smartphone de vos volets , chauffages et luminaires). Au calme dans un secteur privilégié et arboré au Nord de Senlis avec toutes les commodités à Proximité ou sur place. Commune avec école , cantine et périscolaire. Commerces de Bouches, Bar, restaurants, coiffeurs, etc... Pour plus de renseignements , contactez XAVIER au 06/16/27/53/27





