

- Prix
- 162 000 €
Maison neuve • Ribécourt-Dreslincourt
- Nom et prix
- Terrain à bâtir Ribécourt-Dreslincourt (60170) • 162 000 €
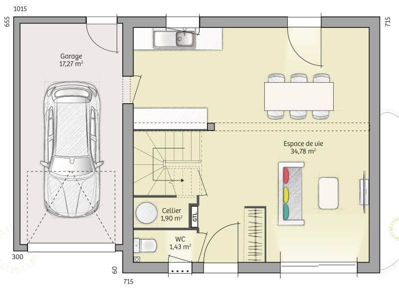
Découvrez notre gamme de maisons évolutives. Située à 10 minutes seulement de Ribécourt et de sa gare , sur un terrain de 950m² . Proximité immédiate de l'école , environnement paisible et arboré . Cette maison dispose de 1 chambre avec rangements intégrés , séjour carrelé ,1 salle d'eau équipée ,baie aluminium , le rdc est habitable immédiatement . Ensuite , aménagez les combles , rajoutez un garage , ou faites un agrandissement .. Ces maisons sont évolutives , et adaptées à votre budget et évolution de vie . Profitez également de notre expérience de plus de 13 ans sur le secteur , et bénéficiez d'un accompagnement intégral pour votre projet de vie : Financement , étude technique du terrain , gestion administrative . Les frais annexes ( raccordements , viabilisation , puisards, enlèvements des terres excédentaires , chemin d'accès )inclus dans le prix de cette annonce . Contactez moi pour une étude gratuite . Rendez vous en agence ou à votre domicile . VERON ANTHONY /07/77/85/58/88/





