

- Prix
- 370 000 €
Maison neuve • Brégy
- Nom et prix
- Terrain à bâtir () • 370 000 €
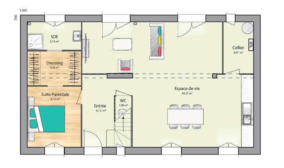
Terrain à bâtir sur la charmante commune de BREGY, située à 10 km de LE PLESSIS BELLEVILLE, d'une superficie de 310 m²,plat, idéalement situé, avec une belle façade. et entièrement clôturé. Exemple de projet maison moderne de type R+1 de 105 m² avec 3 chambres dont 1 suite parentale, 1 salle de bain séparé, 1 grand vide sur Salon et 1 Garage intégré. Tous nos projets sont entièrement réalisés sur-mesure, de nombreuses prestations incluses: baies coulissantes en aluminium, volets roulants intégrés à la maçonnerie (non-apparents) motorisés. Entrée, cuisine, pièce de vie, cellier et pièces d'eau carrelés, maison prête à décorer, clef en main. Pompe à chaleur ou pompe à chaleur hybride (gaz) dernière génération (classe énergétique A+), plancher chauffant RDC (et ETAGE), sèche-serviettes, plusieurs choix de menuiseries intérieures, construction en brique. RE 2020. Projet TOTAL: terrain + maison + frais annexes. Pour tout renseignement contacter XAVIER de l'agence Maisons France Confort : 06 16 27 53 27





