

- Prix
- 280 000 €
Maison neuve • Saint-Martin-Longueau
- Nom et prix
- Terrain à bâtir () • 280 000 €
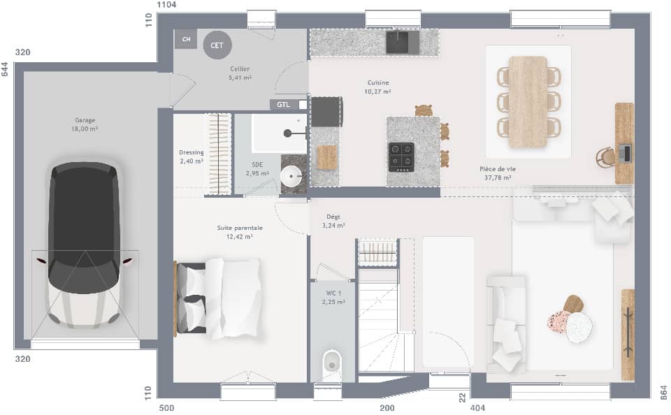
Venez concevoir votre maison à SAINT MARTIN LONGUEAU d'une superficie de 611 m²,plat, avec belle façade constructible, idéalement situé. Exemple de projet maison de 71 m2 loi Carrez comprenant un garage intégré. Tous nos projets sont entièrement réalisés sur-mesure, de nombreuses prestations incluses: baies coulissantes en aluminium, volets roulants intégrés à la maçonnerie (non-apparents) motorisés. Entrée, cuisine, pièce de vie, cellier et pièces d'eau carrelés, maison prête à décorer, clef en main. Pompe à chaleur ou pompe à chaleur hybride (gaz) dernière génération (classe énergétique A+), plancher chauffant RDC (et ETAGE), sèche-serviettes, plusieurs choix de menuiseries intérieures, construction en brique. RE 2020. Projet terrain + maison + frais annexes. Pour tout renseignement contacter XAVIER de l'agence Maisons France Confort: 06/16/27/53/27





