

- Prix
- 204 500 €
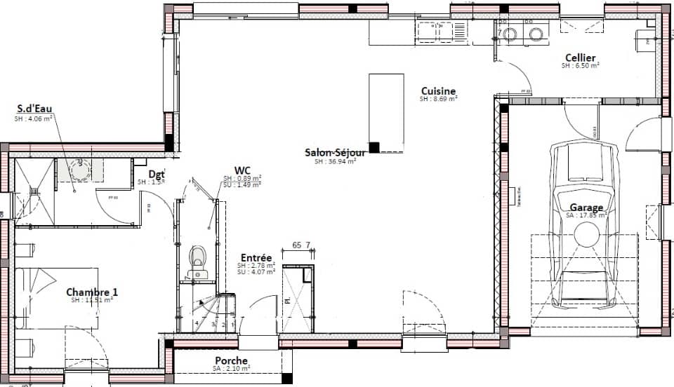
Maison neuve • La Flèche
- Nom et prix
- Terrain à bâtir () • 204 500 €
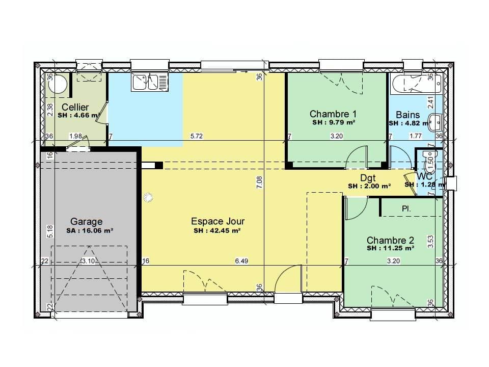
A La Flèche : Nous vous présentons cette maison évolutive de 76 m² au rez-de-chaussée et de 625 m² de terrain à La Flèche (72200). Elle propose deux chambres, une belle pièce de vie, une salle d'eau, un cellier accessible par le garage. Combles aménageables, possibilité de faire 3 chambres et une salle d'eau. On trouve des écoles de tous niveaux (de la maternelle au lycée) à moins de 10 minutes à pied. L'autoroute A11 est accessible à 14 km. Il y a trois tennis, un bassin de natation, des commerces, des boulangeries, deux supermarchés, des boucheries-charcuteries et un bureau de poste dans les environs. Enfin, le marché Boulevard Foch a lieu tous les mercredis matin. Elle est à vendre pour la somme de 204 500 €. Prenez contact avec notre agence (Sophie RIBEMONT : 07-77-76-34-73) pour tout renseignement sur le bien. Maine Construction Saint-Saturnin est là pour vous accompagner dans toutes vos démarches.





