

- Prix
- 269 000 €
Maison neuve • Champagné
- Nom et prix
- Terrain à bâtir Champagné (72470) • 269 000 €
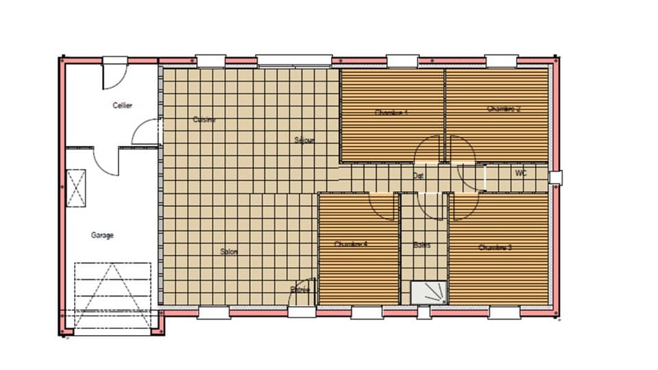
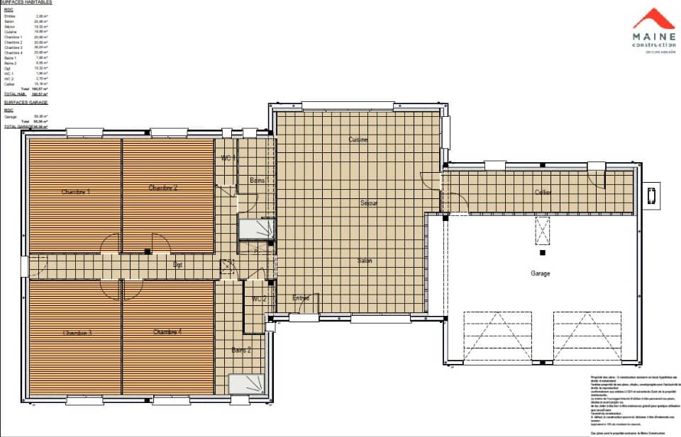
Champagné : maison de 5 pièces (100 m²) à vendre IDÉALEMENT SITUÉE - MAISON 5 PIÈCES NEUVE En vente : à quelques kilomètres du Mans, ayez le coup de coeur pour cette maison de 5 pièces de plain-pied de 100 m² idéalement située dans Champagné (72470). Son intérieur comporte quatre chambres, une cuisine et une salle de bains. Cette maison est neuve. Le terrain de la propriété s'étend sur 2 051 m². La maison se trouve dans un quartier prisé. Il y a quatre établissements scolaires à moins de 10 minutes à pied. Côté transports en commun, on trouve la gare Champagné dans un rayon de 1 km. Les autoroutes A28 et A11 sont accessibles à moins de 4 km. Il y a un tennis, deux boulangeries, un bureau de poste et une boucherie-charcuterie à quelques minutes du bien. Son prix de vente est de 269 000 €. Contactez Luc LIVET (tél : 07-77-76-37-30) pour toute question sur la propriété. Faites de vos projets immobiliers une réalité avec Maine Construction Saint-Saturnin.





