

- Prix
- 359 100 €
Maison neuve • Neuville-sur-Sarthe
- Nom et prix
- Terrain à bâtir () • 359 100 €
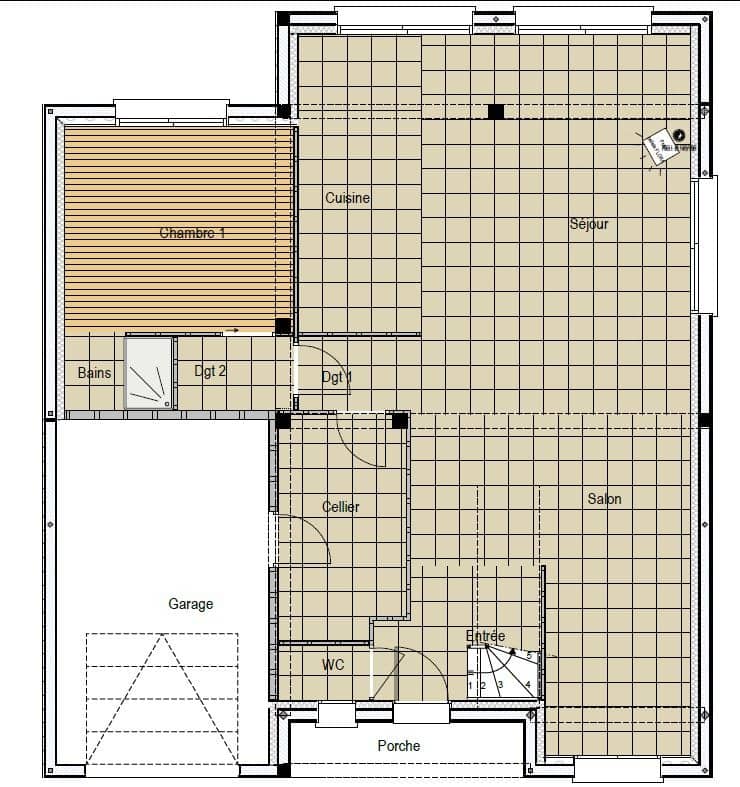
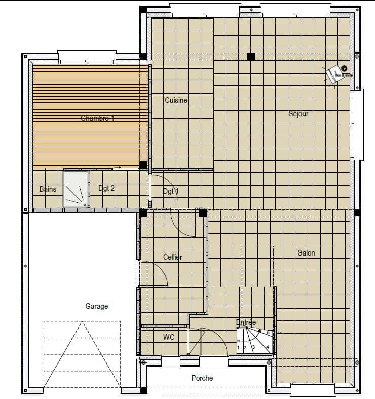
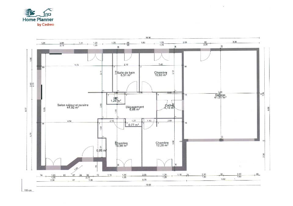
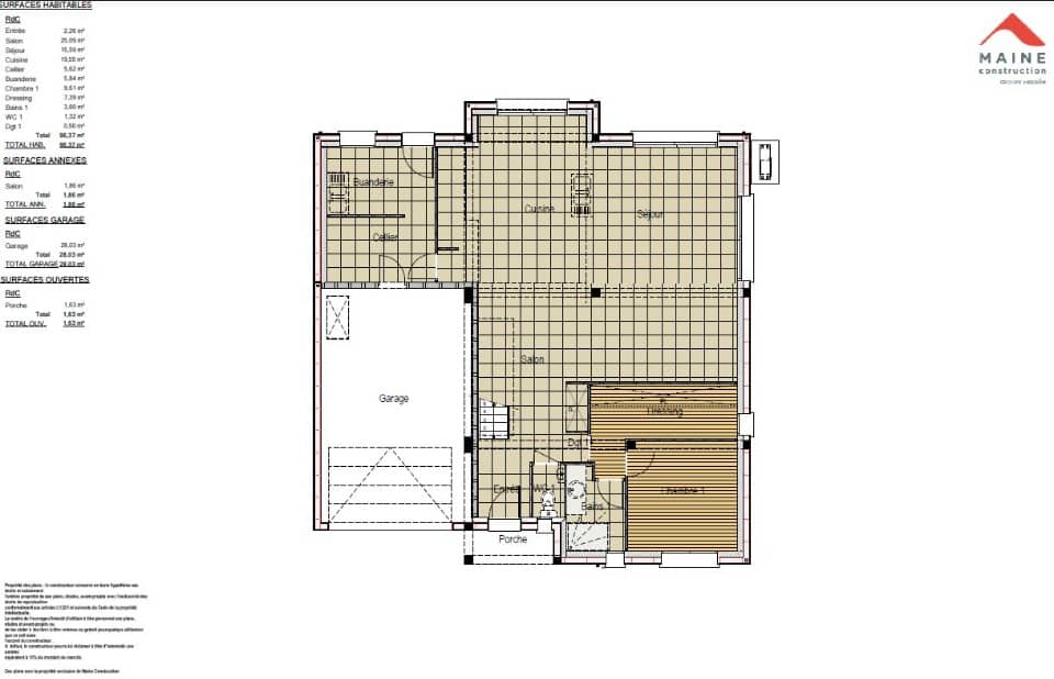
Maison T5 (140 m²) en vente à Neuville-sur-Sarthe PROCHE DU MANS - MAISON 5 PIÈCES NEUVE À vendre : à deux pas du Mans, nous vous présentons à Neuville-sur-Sarthe (72190), cette maison de 5 pièces de 140 m². Son intérieur inclut quatre chambres, une cuisine et deux salles de bains. Le terrain du bien est de 449 m². Il s'agit d'une maison de 2 niveaux. Elle est neuve. L'École Primaire Publique Léonard de Vinci est implantée à moins de 10 minutes à pied. Niveau transports en commun, on trouve la gare Neuville-sur-Sarthe à quelques pas de la maison. Il y a un accès à l'autoroute A11 à 3 km. Il y a un tennis, une boulangerie, un commerce, une épicerie et une boucherie-charcuterie à quelques minutes. Son prix de vente est de 359 100 €. N'hésitez pas à prendre contact avec Sophie RIBEMONT (07-77-76-34-73) pour toute information sur ce bien, sur les modalités de vente et sur les démarches à suivre. Maine Construction Saint-Saturnin est là pour vous accompagner à toutes les étapes de votre projet.





