

- Prix
- 324 000 €
Maison neuve • Le Mans
- Nom et prix
- Terrain à bâtir Le Mans (72000) • 324 000 €
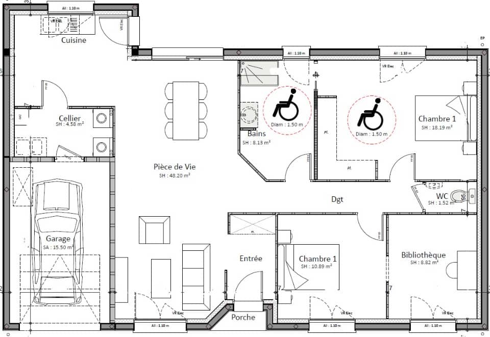
Maison T4 (115 m²) à vendre au Mans EMPLACEMENT PRIVILÉGI- MAISON 4 PIÈCES NEUVE En vente : Maine Construction Saint-Saturnin vous présente cette maison de 4 pièces de plain-pied de 115 m² et de 732 m² de terrain bénéficiant d'un emplacement d'exception dans Le Mans (72000). Elle compte trois chambres, une cuisine et deux salles de bains. La maison est neuve. Cette maison se situe dans un quartier attractif. Il y a le lycée Institut Technologique Européen des Métiers de la Musique à moins de 10 minutes à pied, deux structures d'accueil pour la petite enfance et deux établissements du supérieur dans un rayon de 1 km : l'Université du Mans et l'Institut supérieur des matériaux du Mans. Côté transports, on trouve les gares Le Mans, Neuville-sur-Sarthe et Arnage à moins de 10 minutes en voiture. L'autoroute A11 est accessible à 3 km. Il y a deux tennis, trois boulangeries, des commerces, un supermarché et un bureau de poste dans les environs. Elle est proposée à l'achat pour 324 000 €. Contactez François HOUDAYER (tél : 06-23-38-26-90) pour tout renseignement sur le bien, sur les démarches à suivre ou sur les modalités de vente. Faites de vos projets immobiliers une réalité avec Maine Construction Saint-Saturnin.





