

- Prix
- 355 000 €
Maison neuve • Aigné
- Nom et prix
- Terrain à bâtir () • 355 000 €
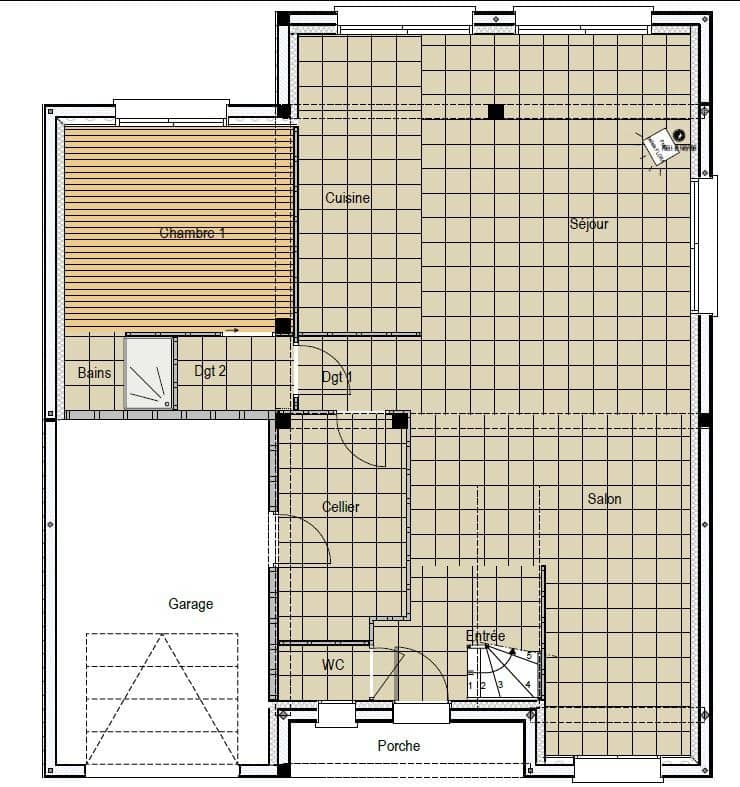
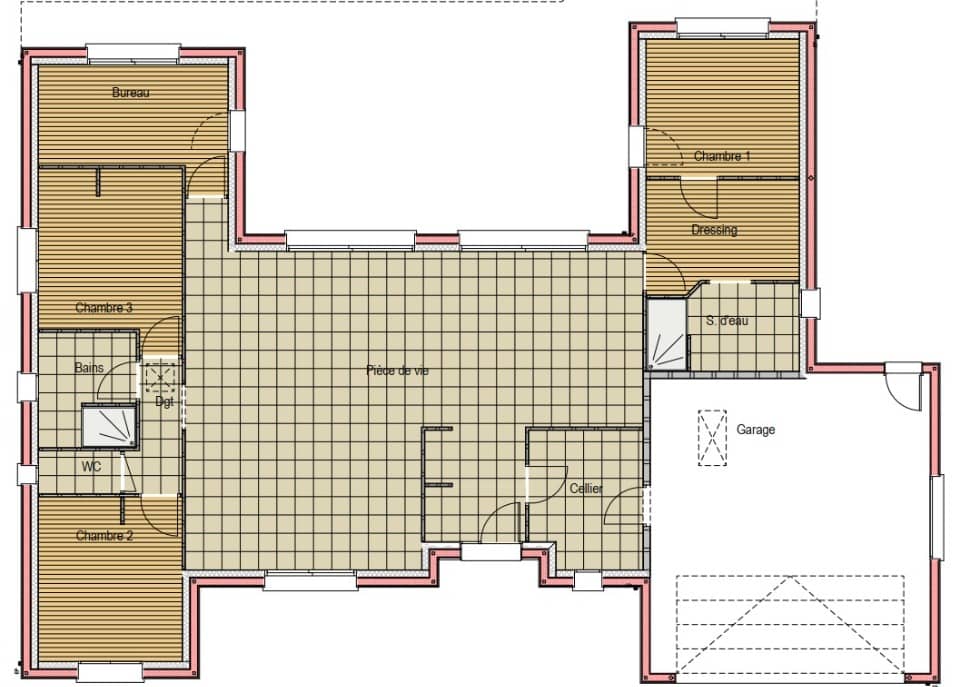
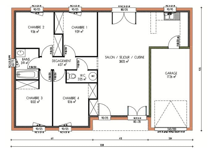
Maison F5 (140 m²) à vendre à Aigné EMPLACEMENT PRIVILÉGI- MAISON 5 PIÈCES NEUVE À vendre : localisée à deux pas du Mans, nous sommes ravis de vous proposer, bénéficiant d'un emplacement privilégié dans Aigné (72650), cette maison de 5 pièces de 140 m². Elle compte quatre chambres, une cuisine et deux salles de bains. Le terrain de la propriété s'étend sur 376 m². C'est une maison de 2 niveaux. Elle est neuve. La propriété est située dans un secteur attractif. On trouve l'École Primaire Publique Roger Bazille à moins de 10 minutes à pied. Côté transports en commun, il y a quatre gares à moins de 10 minutes en voiture. Il y a un accès à l'autoroute A11 à 4 km. On trouve un tennis à proximité du logement. Elle est à vendre pour la somme de 355 000 €. N'hésitez pas à prendre contact avec notre agence (Luc LIVET : 07-77-76-37-30) pour toute information sur la maison ou sur les modalités de vente. Faites de vos projets immobiliers une réalité avec Maine Construction Saint-Saturnin.





