

- Prix
- 225 000 €
Maison neuve • Le Mans
- Nom et prix
- Terrain à bâtir Le Mans (72000) • 225 000 €
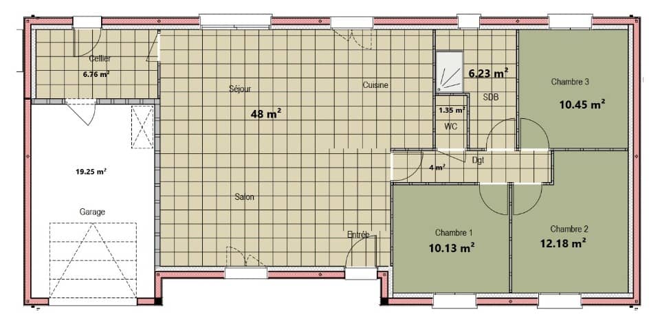
VENTE : maison F3 (73 m²) au Mans QUARTIER RECHERCH- MAISON 3 PIÈCES NEUVE Nous vous proposons cette maison de 3 pièces de plain-pied de 73 m² et de 450 m² de terrain dans un quartier convoité du Mans (72000). Conçue de plain-pied, elle dispose de deux chambres, d'une cuisine et d'une salle de bains. Cette maison est neuve. La propriété est située dans un secteur prisé. Le lycée Institut Technologique Européen des Métiers de la Musique est implanté à moins de 10 minutes à pied, deux crèches, tout comme l'Université du Mans et l'Institut supérieur des matériaux du Mans pour le supérieur. Niveau transports, il y a les gares Le Mans, Neuville-sur-Sarthe et Arnage à moins de 10 minutes en voiture. L'autoroute A11 est accessible à 3 km. On trouve deux tennis, trois boulangeries, des commerces, un supermarché et un bureau de poste dans les environs. Elle est proposée à l'achat pour 225 000 €. N'hésitez pas à prendre contact avec notre agence (François HOUDAYER : 06-23-38-26-90) pour toute question sur la maison.





