

- Prix
- 125 000 €
Maison neuve • Chailley
- Nom et prix
- Terrain à bâtir Chailley (89770) • 125 000 €
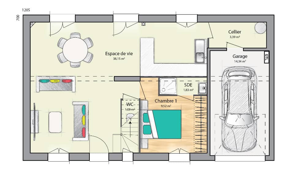
VENTE d'une maison de 3 pièces (71 m²) à Chailley PROCHE DE SENS - MAISON 3 PIÈCES NEUVE À vendre : à quelques kilomètres de Sens, votre agence Maisons Evolution Dammarie-les-Lys est heureuse de vous proposer cette maison de 3 pièces de plain-pied de 71 m² à Chailley (89770). Elle propose deux chambres, une cuisine et une salle de bains. Cette maison est neuve. Le terrain de la propriété s'étend sur 672 m². Il y a une école primaire dans le quartier et une structure d'accueil pour les enfants en bas âge. La nationale N77 est accessible à 10 km. On trouve un tennis, une boulangerie et deux boucheries-charcuteries dans les environs. Elle est à vendre pour la somme de 125 000 €. Hors frais de notaire et raccordements. N'hésitez pas à prendre contact avec le 06-37-77-37-68 ou 01-64-79-02-20 pour toute information sur la maison. Donnez vie à vos projets immobiliers avec Maisons Evolution Dammarie-les-Lys.





