
- Prix
- 345 700 €
Maison neuve • Maule
- Nom et prix
- Terrain à bâtir Maule (78580) • 345 700 €
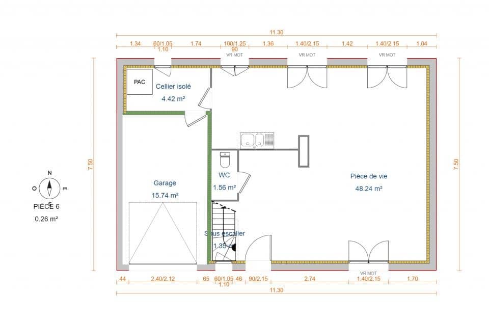
Maule : maison de 5 pièces (85 m²) à vendre PROCHE GARE - MAISON 5 PIÈCES NEUVE À côté du Transilien N (60 min de Paris), à vendre dans Maule (78580), proche de la gare, nous vous présentons cette maison de 5 pièces de 85 m² et de 507 m² de terrain. C'est une maison de 2 niveaux. Elle offre trois chambres, une cuisine et une salle de bains. La maison est neuve. Il y a des établissements scolaires de tous niveaux (de la maternelle au lycée) à moins de 10 minutes à pied. Niveau transports en commun, on trouve la gare Maule dans un rayon de 1 km. Il y a une bibliothèque, un tennis, des commerces, des boulangeries, un supermarché, trois boucheries-charcuteries et un bureau de poste à quelques minutes du logement. Elle est proposée à l'achat pour 345 700 €. Contactez Gilles BOREAU (01-30-65-11-55) pour toute question sur la propriété.




