
- Prix
- 235 159 €
Maison neuve • Écalles-Alix
- Nom et prix
- Terrain à bâtir Écalles-Alix (76190) • 235 159 €
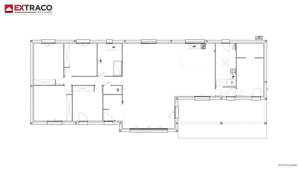
Maison de 6 pièces (114 m²) à Écalles-Alix MAISON 6 PIÈCES NEUVE - PROCHE DE ROUEN A construire : à quelques kilomètres de Rouen, nous vous proposons cette maison de 6 pièces de 114 m² à Écalles-Alix (76190). Elle propose cinq chambres, une cuisine et deux salles de bains. Le terrain de cette maison s'étend sur 683 m². Cette maison comporte 2 niveaux. Elle est neuve. Il y a l'École Primaire la Buissonnière à moins de 10 minutes à pied et une structure d'accueil pour les tout-petits. Niveau transports en commun, on trouve les gares Motteville et Yvetot à moins de 10 minutes en voiture. Les autoroutes A150 et A29 sont accessibles à moins de 4 km. Il y a une bibliothèque à quelques minutes à peine. Elle est à vendre pour la somme de 235 159 €. N'hésitez pas à prendre contact avec notre agence (Sébastien LENFANT : 06-66-42-53-33) pour tout renseignement sur cette maison ou sur les modalités de vente.




