

- Prix
- 704 000 €
Maison neuve • Saint-Cyprien
- Nom et prix
- Terrain à bâtir Saint-Cyprien (66750) • 704 000 €
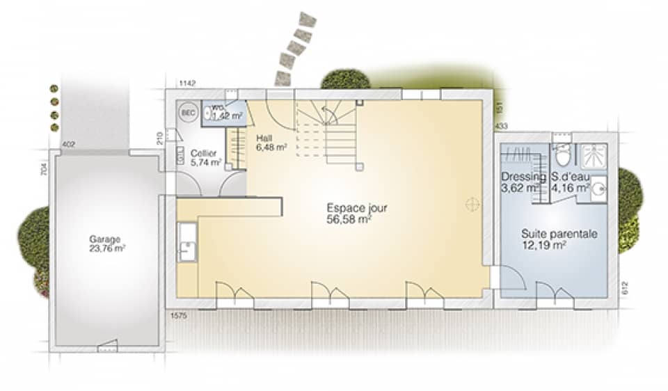
Maison de 160 m² à vendre à Saint-Cyprien Proche de Perpignan - À découvrir à Saint-Cyprien (66750) : maison neuve 7 pièces à vendre, 2 niveaux, 160 m² de surface sur 966 m² de terrain. Autoroute A9 et nationale N116 à 15 km. Mer Méditerranée à 4 km. Espagne à 16 km. Cette maison de 7 pièces est à vendre pour la somme de 704 000 €. Prenez contact avec notre agence (MARIE Maryline : 06-10-47-27-59) pour plus de renseignements sur la maison. Maisons Balency Cabestany vous accompagne à toutes les étapes de l'achat et dans toutes vos démarches. Plans sur mesure.





