

- Prix
- 328 000 €
Maison neuve • Gonneville-sur-Honfleur
- Nom et prix
- Terrain à bâtir Gonneville-sur-Honfleur (14600) • 328 000 €
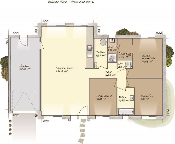
Maison F5 (100 m²) en vente à Gonneville-sur-Honfleur MAISON 5 PIÈCES NEUVE - PROCHE DU HAVRE À vendre à 5 km de la Manche et à deux pas du Havre, venez découvrir à Gonneville-sur-Honfleur (14600), cette maison de 5 pièces de plain-pied de 100 m². Conçue de plain-pied, elle offre trois chambres, une cuisine et deux salles de bains. Cette maison est neuve. Le terrain de la propriété est de 1 000 m². Une école primaire est implantée dans le quartier. L'autoroute A29 est accessible à 1 km. Son prix de vente est de 328 000 €. N'hésitez pas à prendre contact avec Sébastien MASSON (06-23-38-14-17) pour toute question sur le bien, sur les modalités de vente ou sur les démarches à suivre.





