

- Prix
- 272 000 €
Maison neuve • Auneuil
- Nom et prix
- Terrain à bâtir Auneuil (60390) • 272 000 €
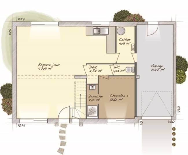
Auneuil : maison de 6 pièces (100 m²) en vente MAISON 6 PIÈCES NEUVE - PROCHE DE BEAUVAIS À vendre : à deux pas de Beauvais, découvrez à Auneuil (60390), cette maison de 6 pièces de 100 m² et de 800 m² de terrain. Cette maison compte 2 niveaux. Elle inclut quatre chambres, une cuisine et deux salles de bains. Cette maison est neuve. L'École Élémentaire le Vieux Lavoir, l'École Maternelle de la Petite Colline et le Collège le Point du Jour sont implantés à moins de 10 minutes à pied. Niveau transports, il y a deux gares (Saint-Sulpice-Auteuil et Beauvais) à moins de 10 minutes en voiture. L'autoroute A16 et la nationale N31 sont accessibles à moins de 10 km. On trouve un tennis, une bibliothèque, deux commerces, deux boulangeries, un supermarché, une boucherie-charcuterie et un bureau de poste dans les environs. Elle est proposée à l'achat pour 272 000 €. Prenez contact avec notre agence (MASSON Sébastien : 06-23-38-14-17) pour toute question sur la propriété, sur les modalités de vente ou sur les démarches à suivre.





