

- Prix
- 378 000 €
Maison neuve • Blainville-sur-Orne
- Nom et prix
- Terrain à bâtir () • 378 000 €
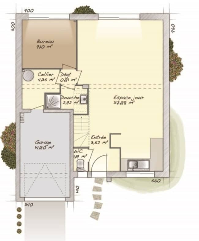
Blainville-sur-Orne : maison F6 (128 m²) en vente PROCHE DE CAEN - MAISON 6 PIÈCES NEUVE En vente : située à 8 km de la Manche et à 7 km de Caen, nous vous présentons à Blainville-sur-Orne (14550), cette maison de 6 pièces de 128 m² et de 400 m² de terrain. C'est une maison de 2 niveaux. Son intérieur inclut quatre chambres, une cuisine et deux salles de bains. Cette maison est neuve. Le Collège Langevin Wallon, l'École Primaire Colbert et l'École Primaire Joliot-Curie sont implantés à moins de 10 minutes à pied, tout comme deux structures d'accueil pour la petite enfance. Côté transports en commun, on trouve la gare Caen à moins de 10 minutes en voiture. L'autoroute A13 et la nationale N814 sont accessibles à moins de 7 km. Il y a un tennis, une bibliothèque, trois commerces, un supermarché, deux boulangeries et un bureau de poste dans les environs. Elle est proposée à l'achat pour 378 000 €. N'hésitez pas à prendre contact avec Francois LAMY (tél : 06-35-39-35-17) pour toute information sur la maison. Maisons Balency Caen vous accompagne à toutes les étapes de votre projet et dans tous vos projets immobiliers.





