

- Prix
- 213 000 €
Maison neuve • Saint-Martin-au-Bosc
- Nom et prix
- Terrain à bâtir Saint-Martin-au-Bosc (76340) • 213 000 €
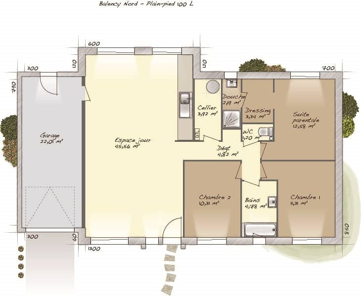
Maison de 5 pièces (100 m²) en vente à Saint-Martin-au-Bosc MAISON 5 PIÈCES NEUVE En vente : située à 39 km de la Manche, notre agence Maisons Balency Boos est heureuse de vous présenter cette maison de 5 pièces de plain-pied de 100 m² et de 1 000 m² de terrain à Saint-Martin-au-Bosc (76340). Son intérieur compte trois chambres, une cuisine et deux salles de bains. Cette maison est neuve. Il y a une école élémentaire dans le quartier. Niveau transports, on trouve la gare Aumale à moins de 10 minutes en voiture. Les autoroutes A29 et A28 sont accessibles à moins de 10 km. Elle est proposée à l'achat pour 213 000 €. Contactez notre agence (Sébastien MASSON : 06-23-38-14-17) pour toute information sur la maison, sur les modalités de vente ou sur les démarches à suivre.





