

- Prix
- 580 000 €
Maison neuve • Le Plessis-Trévise
- Nom et prix
- Terrain à bâtir Le Plessis-Trévise (94420) • 580 000 €
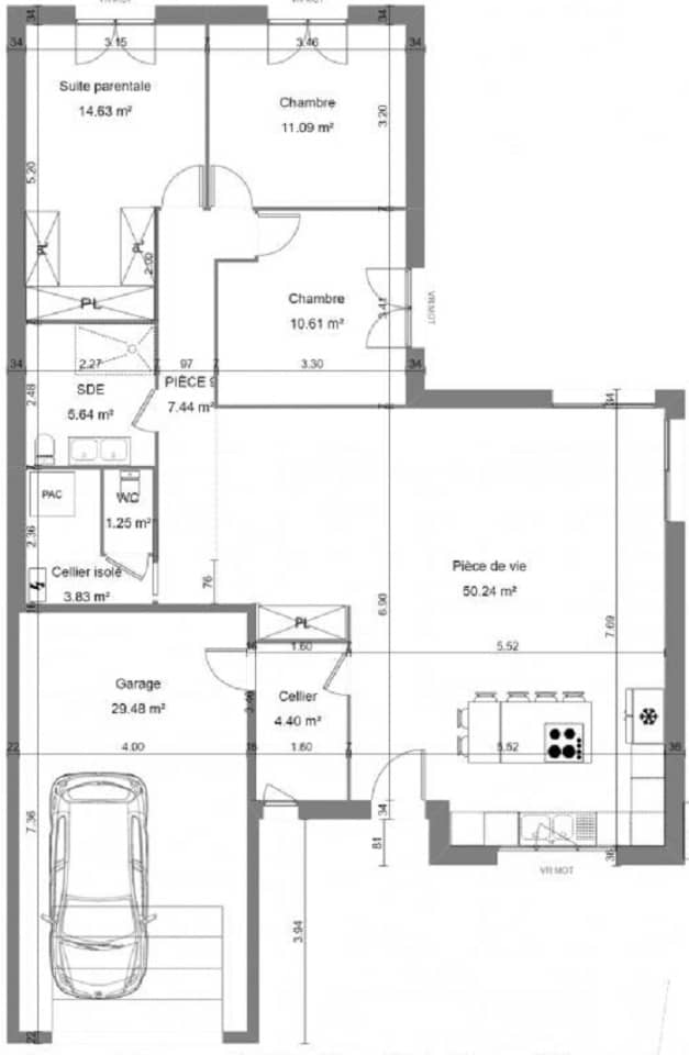
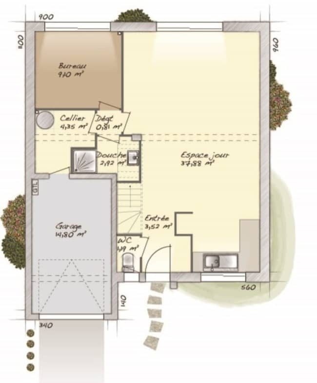
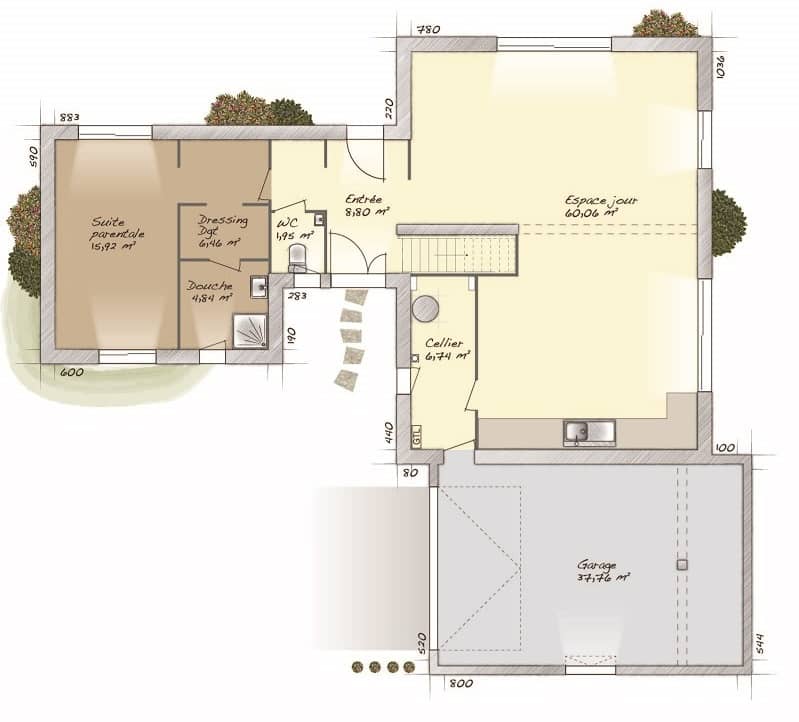
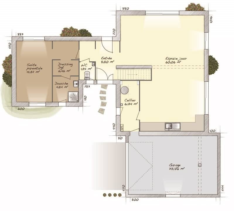
Beau projet de construction au Plessis Trevise, sur un terrain d'une superficie de 712 m2, à partir de 580 000 € terrain+maison avec notre maison ETG GI, l'ambiance est au charme et à l'élégance, pour une maison aux finitions délicates. Ce modèle ETG GI de 83 m2 est composé de 3 chambres à l'étage avec dressing et d'une salle de bains, au rez-de-chaussée d'un espace vie de 30 m2 et d'un garage intégré. Pour plus d'information n'hésitez pas à contacter Louis, Maisons Balency au 06/48/34/25/29. Photos non contractuelles, terrain proposé par un partenaire foncier sous réserve de disponibilité et autorisation de publicité. Maison proposée Hors papiers peints, peintures, revêtement de sol dans les chambres. Tarif modifiable sans préavis. Etiquette énergie: A. Différents modèles disponibles pour ce terrain. Assurances et garanties du constructeur (RC professionnelle, décennale, dommage ouvrage, garantie de remboursement de l'acompte, livraison à prix et délai convenu).





