

- Prix
- 233 000 €
Maison neuve • Brosville
- Nom et prix
- Terrain à bâtir Brosville (27930) • 233 000 €
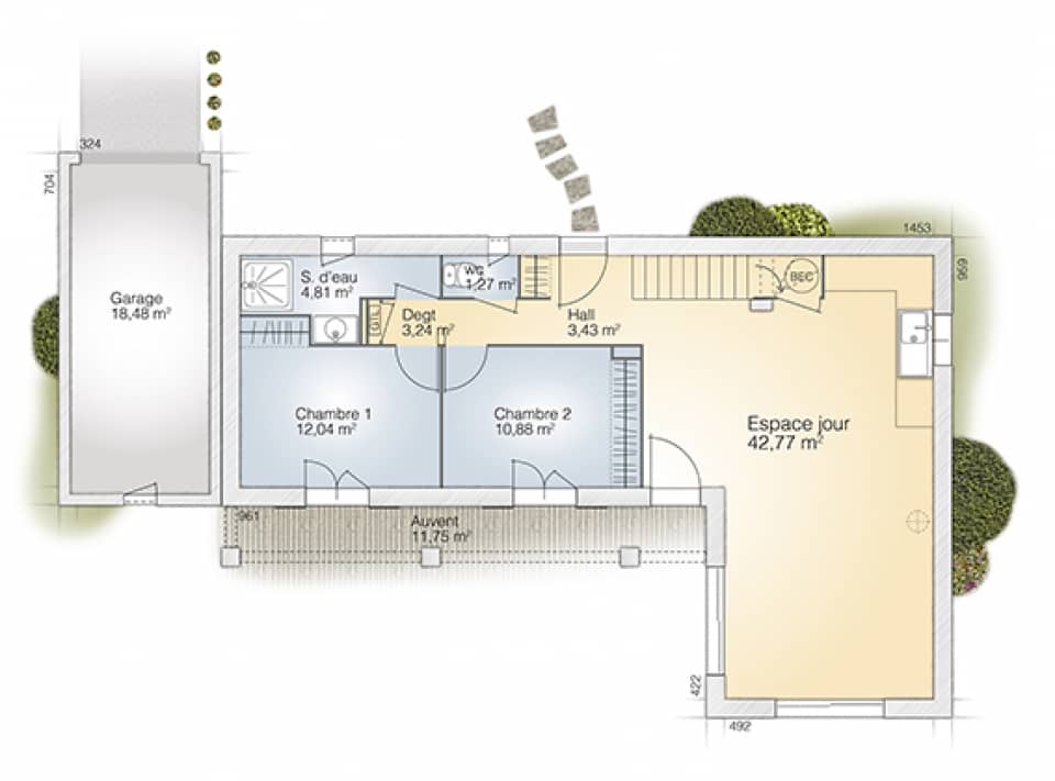
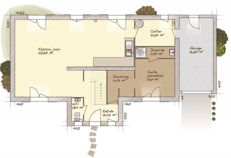
Maison F6 (89 m²) en vente à Brosville MAISON 6 PIÈCES NEUVE - PROCHE D'ÉVREUX Maison au style contemporain qui offre quatre chambres, dont une au RDC. A l'étage, les 3 autres chambres accompagnées d'une salle de bain et de WC. Lorsque vous entrez dans la grande pièce de vie ouverte, vous découvrez sur un grand séjour lumineux avec ses baies coulissantes en alu, une cuisine donnant sur la salle a manger et un cellier en arrière cuisine. Cette construction dispose de prestations de qualité ; chauffage par pompe a chaleur, répondant aux normes RE2020 en vigueurs, menuiseries alu laquées ou en PVC avec volets roulant électriques, d²²²²²²²motique et centralisation, carrelage design dans la gamme constructeur, choix des portes intérieures, des appuis de fenêtres, couverture en terre cuite ou en ardoise... Les finitions de ce modèle seront une véritable source de fierté. N'hésitez pas à prendre contact avec Karen GOHIER (06 71 52 61 13) pour toute information sur la maison, sur les démarches à suivre ou sur les modalités de vente. Donnez vie à vos projets immobiliers avec Maisons Balency Louviers.





