

- Prix
- 359 000 €
Maison neuve • Conflans-Sainte-Honorine
- Nom et prix
- Terrain à bâtir Conflans-Sainte-Honorine (78700) • 359 000 €
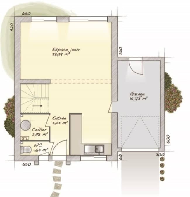
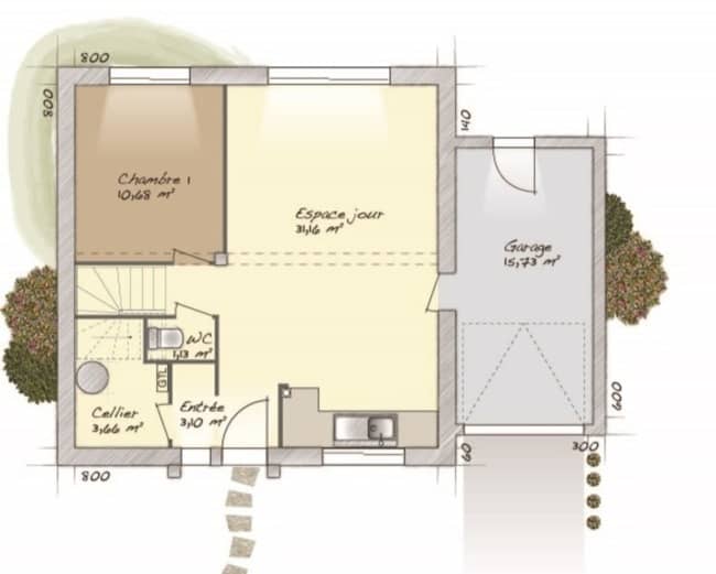
Conflans-Sainte-Honorine : maison de 5 pièces (90 m²) en vente IDÉALEMENT SITUÉE - MAISON 5 PIÈCES NEUVE À vendre : à deux pas du Transilien J (20 min de Paris), ayez le coup de coeur pour cette maison de 5 pièces de 90 m² avec vue sur jardin idéalement située dans Conflans-Sainte-Honorine (78700). Son intérieur comporte trois chambres, une cuisine et une salle de bains. Le terrain du bien est de 200 m². Cette maison possède 2 niveaux. Elle est neuve. La maison est située dans un secteur recherché. On trouve plusieurs écoles (maternelle, élémentaire et lycée) à moins de 10 minutes à pied, tout comme deux crèches. Côté transports, il y a la gare Conflans-Sainte-Honorine juste à côté. On trouve un tennis, une bibliothèque, des commerces, des boulangeries, un supermarché, un bureau de poste et quatre supérettes à quelques minutes. Elle est proposée à l'achat pour 359 000 €. Contactez notre agence (TALAMONI Christophe : 06-49-55-08-27) pour toute information sur la maison ou sur les démarches à suivre.





