

- Prix
- 287 274 €
Maison neuve • Penchard
- Nom et prix
- Terrain à bâtir () • 287 274 €
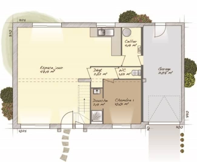
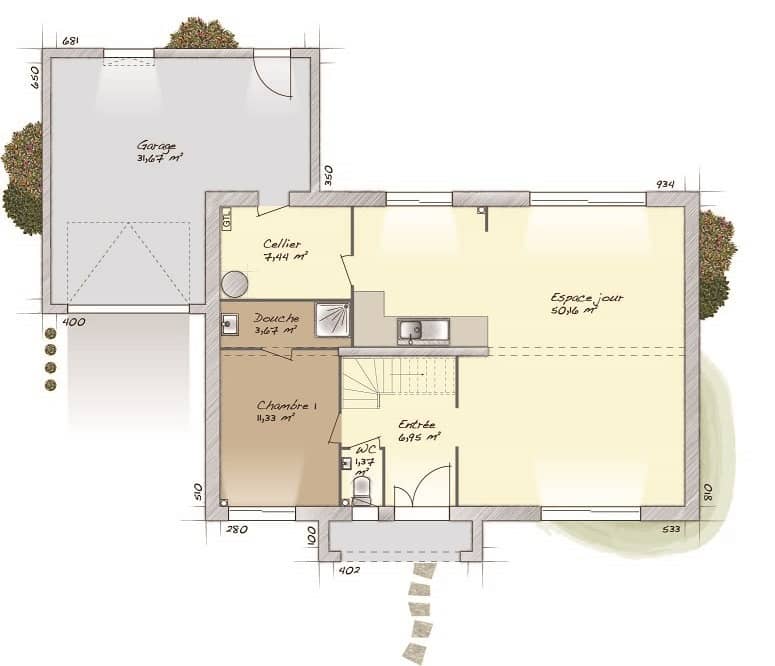
VENTE : maison de 7 pièces (102 m²) à Penchard MAISON 7 PIÈCES NEUVE - PROCHE D'AULNAY-SOUS-BOIS À vendre : au pied de la gare de Meaux (Paris à 25 min avec le Transilien P), votre agence Maisons Balency Dammartin-en-Goële est ravie de vous présenter à Penchard (77124), cette maison de 7 pièces de 102 m² et de 500 m² de terrain. Elle propose cinq chambres, une cuisine et deux salles de bains. C'est une maison de 2 niveaux. Elle est neuve. On trouve une école primaire dans le quartier. Côté transports en commun, il y a trois gares (Meaux, Trilport et Esbly) à moins de 10 minutes en voiture. Il y a un tennis, une bibliothèque et une boulangerie dans les environs. Son prix de vente est de 287 274 €. Contactez notre agence (DARTEVELLE Sébastien : 06-24-63-58-60) pour obtenir de plus amples renseignements sur cette maison, sur les modalités de vente ou sur les démarches à suivre.





