

- Prix
- 215 000 €
Terrain • Frépillon
- Nom et prix
- Terrain à bâtir () • 215 000 €
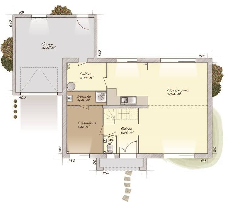
VENTE : terrain de 526 m² à Frépillon PROCHE DE PARIS Au pied du Transilien H (35 min de Paris) à Frépillon (95740), grand terrain. L'École Élémentaire Vieille Fontaine et l'École Maternelle Vieille Fontaine sont implantées à moins de 10 minutes à pied. Niveau transports, il y a la gare Frépillon à proximité. On trouve une bibliothèque, un tennis, trois commerces, une boulangerie, une supérette, une épicerie et un bureau de poste à quelques minutes du bien. Son prix de vente est de 215 000 €. Contactez notre agence (Denis DUCOS : 06-80-06-50-40) pour obtenir de plus amples renseignements sur ce terrain, sur les modalités de vente ou sur les démarches à suivre. Concrétisez vos projets immobiliers avec Maisons Balency Moisselles.





