

- Prix
- 297 274 €
Maison neuve • Villeneuve-sous-Dammartin
- Nom et prix
- Terrain à bâtir () • 297 274 €
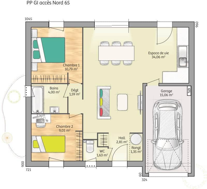
Villeneuve-sous-Dammartin : maison F7 (102 m²) à vendre PROCHE DE PARIS - MAISON 7 PIÈCES NEUVE À côté du Transilien K (gare de Thieux-Nantouillet, 30 min de Paris), nous sommes ravis de vous présenter cette maison de 7 pièces de 102 m² et de 300 m² de terrain à vendre à Villeneuve-sous-Dammartin (77230). Son intérieur propose cinq chambres, une cuisine et deux salles de bains. Cette maison possède 2 niveaux. Elle est neuve. Il y a une école primaire dans le quartier. Niveau transports, on trouve la ligne de RER B (Aéroport Charles De Gaulle 2-Tgv) ainsi que huit gares à moins de 10 minutes en voiture. On trouve une boulangerie et un commerce à proximité. Elle est proposée à l'achat pour 297 274 €. Prenez contact avec notre agence (DARTEVELLE Sébastien : 06-24-63-58-60) pour toute question sur la maison, sur les modalités de vente ou sur les démarches à suivre. Faites de vos projets immobiliers une réalité avec Maisons Balency Dammartin-en-Goële.





