

- Prix
- 595 000 €
Maison neuve • Créteil
- Nom et prix
- Terrain à bâtir Créteil (94000) • 595 000 €
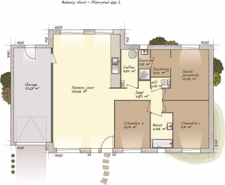
VENTE : maison de 4 pièces (92 m²) à Créteil MAISON 4 PIÈCES NEUVE En vente : à côté de la station Le Vert de Maisons du RER D (10 min de Paris), notre agence Maisons Balency Saint-Maur-des-Fossés est heureuse de vous proposer cette maison de 4 pièces de plain-pied de 92 m² et de 400 m² de terrain à Créteil (94000). Conçue de plain-pied, elle offre trois chambres, une cuisine et une salle de bains. La maison est neuve. Des établissements scolaires (de la maternelle au lycée) sont implantés à moins de 10 minutes à pied, six crèches, tout comme une université à proximité : l'université Université Paris-Est Créteil. Niveau transports, on trouve cinq lignes de RER ainsi que 31 gares à moins de 10 minutes en voiture. Il y a une bibliothèque, deux bassins de natation, des boulangeries, des commerces, des supermarchés, des épiceries et trois bureaux de poste à quelques minutes. Enfin, le marché Centre-Ville anime le quartier. Elle est proposée à l'achat pour 595 000 €. Contactez notre constructeur (MONTANIER Christophe : 06-10-23-51-22) pour tout renseignement sur le bien. Concrétisez vos projets immobiliers avec Maisons Balency Saint-Maur-des-Fossés.





