

- Prix
- 338 000 €
Maison neuve • Saint-Martin-au-Bosc
- Nom et prix
- Terrain à bâtir Saint-Martin-au-Bosc (76340) • 338 000 €
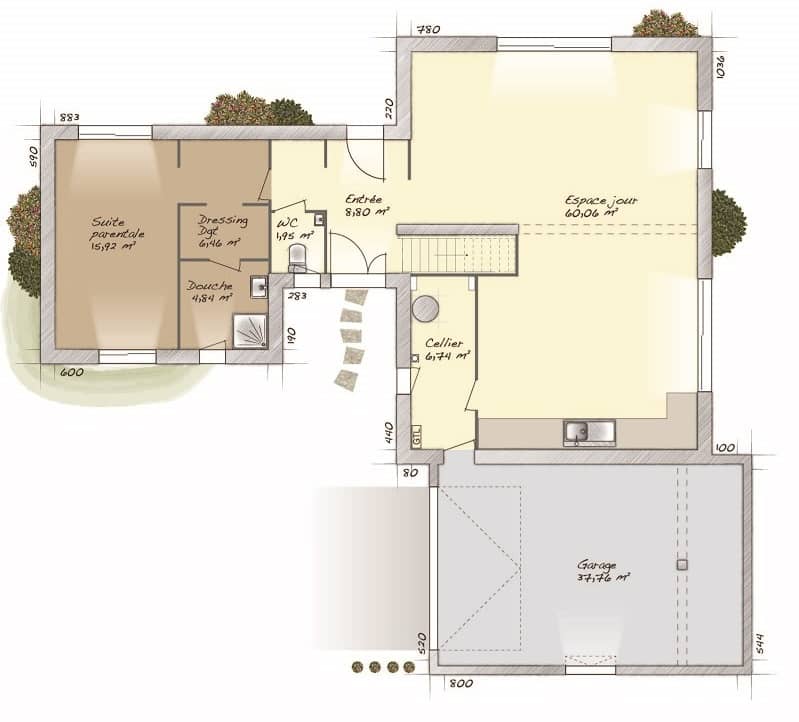
Saint-Martin-au-Bosc : maison de 7 pièces (170 m²) à vendre MAISON 7 PIÈCES NEUVE À 39 km de la Manche, nous sommes ravis de vous proposer cette maison de 7 pièces de plain-pied de 170 m² et de 1 000 m² de terrain à Saint-Martin-au-Bosc (76340). Conçue de plain-pied, elle inclut cinq chambres, une cuisine et trois salles de bains. La maison est neuve. Il y a une école élémentaire dans le quartier. Niveau transports en commun, on trouve la gare Aumale à moins de 10 minutes en voiture. Les autoroutes A29 et A28 sont accessibles à moins de 10 km. Elle est à vendre pour la somme de 338 000 €. Contactez notre agence (Sébastien MASSON : 06-23-38-14-17) pour tout renseignement sur le bien. Maisons Balency Boos vous accompagne dans toutes vos démarches et dans tous vos projets immobiliers.





