

- Prix
- 496 900 €
Maison neuve • Maurepas
- Nom et prix
- Terrain à bâtir Maurepas (78310) • 496 900 €
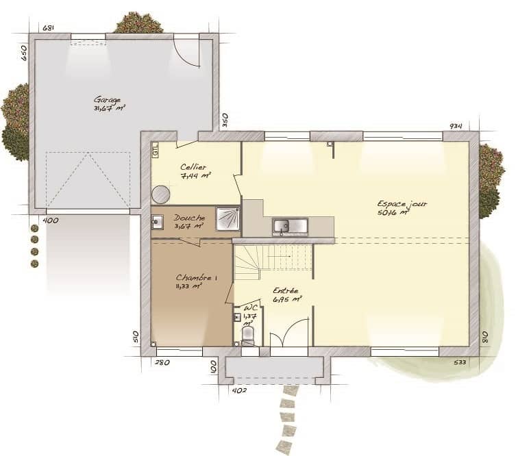
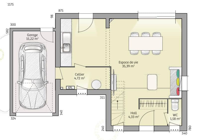
Maurepas : maison T5 (98 m²) à vendre IDÉALEMENT SITUÉE - MAISON 5 PIÈCES NEUVE À 750 m du Transilien N (gare de La Verrière, 35 min de Paris), ayez le coup de coeur pour en vente, idéalement située dans Maurepas (78310), cette maison de 5 pièces de 98 m² avec vue sur jardin. Cette maison possède 2 niveaux. Elle est composée de quatre chambres, d'une cuisine et d'une salle de bains. La maison est neuve. Le terrain de la propriété est de 701 m². La maison se situe dans un secteur convoité. Il y a des écoles de tous niveaux (de la maternelle au lycée) à moins de 10 minutes à pied, tout comme deux structures d'accueil pour les enfants en bas âge. Côté transports en commun, on trouve la gare La Verrière juste à côté. On trouve des commerces, des boulangeries, trois supermarchés, des boucheries-charcuteries et quatre épiceries dans les environs. Son prix de vente est de 496 900 €. N'hésitez pas à prendre contact avec Thibault DUTEURTRE (06-23-41-73-81) pour plus de renseignements sur la maison. Maisons Balency Coignières vous accompagne à toutes les étapes de votre projet et dans toutes vos démarches.





