

- Prix
- 438 700 €
Maison neuve • Notre-Dame-de-Londres
- Nom et prix
- Terrain à bâtir () • 438 700 €
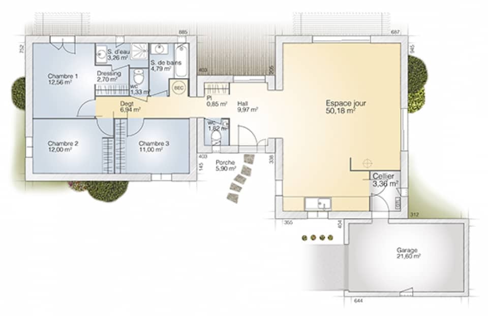
VENTE d'une maison de 5 pièces (120 m²) à Notre-Dame-de-Londres EMPLACEMENT PRIVILÉGI- MAISON 5 PIÈCES NEUVE En vente : à 37 km de la mer Méditerranée et à deux pas de Montpellier, Maisons Balency Castries vous présente, bénéficiant d'un emplacement d'exception dans Notre-Dame-de-Londres (34380), cette maison de 5 pièces de plain-pied de 120 m² et de 500 m² de terrain. Son intérieur compte trois chambres, une cuisine et deux salles de bains. La maison est neuve. Ce bien est situé dans un quartier prisé. On y trouve une école primaire. Il y a un tennis dans les environs. Il est proposé à l'achat pour 438 700 €. Contactez Jean-Yves BARBAGLIA (06-71-64-52-11) pour obtenir de plus amples renseignements sur la maison. Maisons Balency Castries est là pour vous accompagner à toutes les étapes de l'achat.





