

- Prix
- 320 000 €
Maison neuve • Igoville
- Nom et prix
- Terrain à bâtir Igoville (27460) • 320 000 €
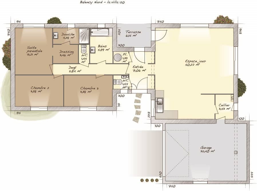
Maison de 5 pièces (120 m²) en vente à Igoville PROCHE DE ROUEN - MAISON 5 PIÈCES NEUVE En vente : Jolie maison de plain pied de 120 m² habitables, spacieuse et lumineuse. Elle se compose d'un espace nuit bien séparé des pièces de vies par une entrée avec rangements et placards. 3 chambres dont une suite parentale avec dressing et salle d‘eau privative, et une seconde salle de bain. Vous trouverez également 2 WC indépendants, une grande cuisine ouverte sur séjour avec des baies coulissantes, et un cellier donnant sur un grand garage. Prestations de qualités ; plancher chauffant, matériaux haut de gamme et finitions soignées. Prenez contact avec Karen GOHIER (06 71 52 61 13) pour tout renseignement sur ce modèle.





