

- Prix
- 337 500 €
Maison neuve • Bessancourt (95)
- Nom et prix
- Terrain à bâtir Bessancourt (95550) • 337 500 €
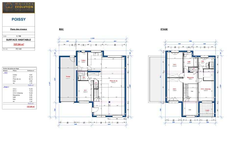
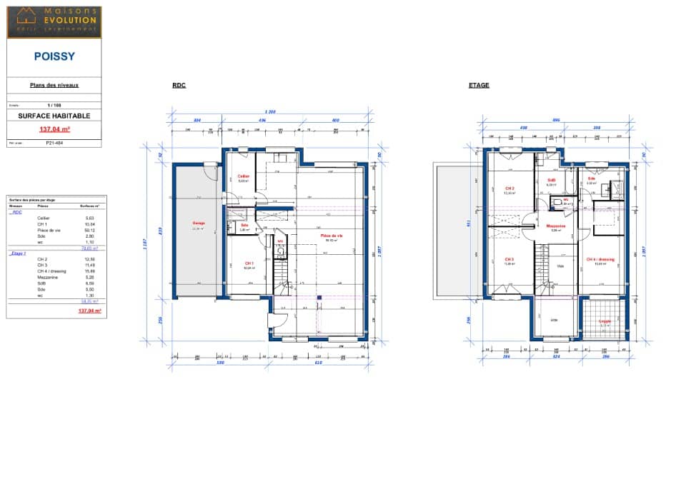
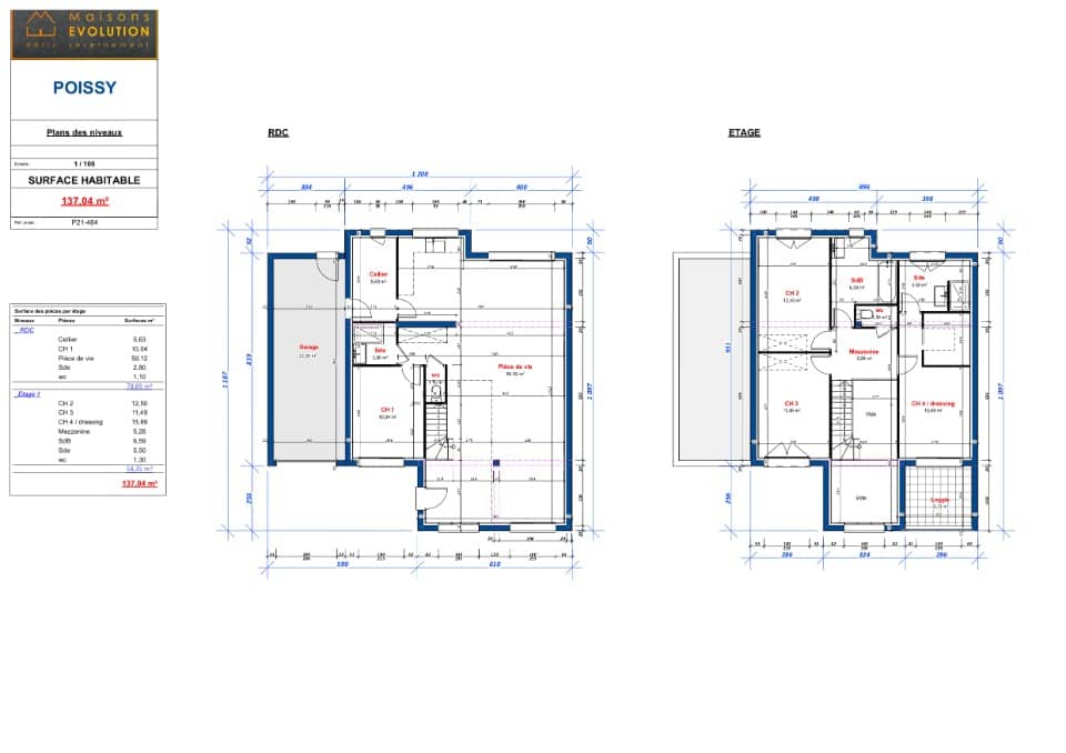
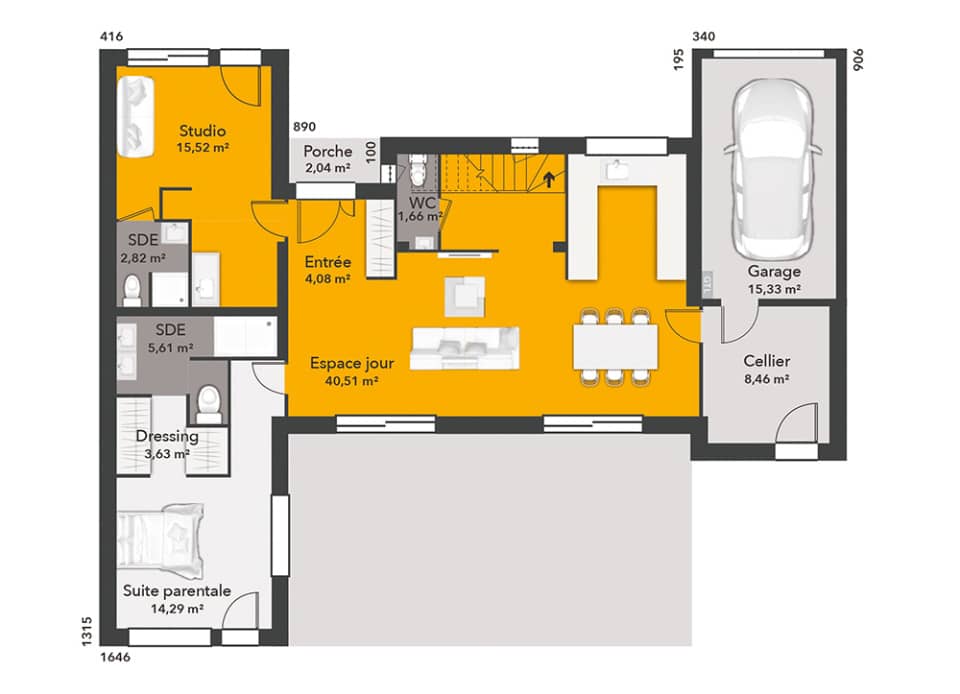
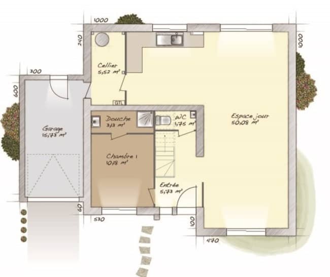
Vente maison neuve à construire à Bessancourt (95) - 337 500€ Située dans un environnement calme et agréable, à seulement quelques minutes de la gare, des écoles et des commerces, cette maison neuve à construire est l'opportunité idéale pour concrétiser votre projet immobilier à Bessancourt. Sur un terrain de 203 m² avec une façade de 9 mètres, cette maison contemporaine de 108 m² vous offrira un cadre de vie agréable et fonctionnel, tout en répondant à vos besoins et attentes. Caractéristiques du bien : Surface habitable : 108 m² 6 pièces spacieuses 4 chambres, dont une suite parentale 2 salles de bain modernes Pièces lumineuses et bien agencées Terrain de 203 m² avec une belle façade de 9 m La maison peut être entièrement personnalisée selon vos préférences et besoins. Que ce soit les plans, les matériaux ou encore les prestations, tout est adaptable à votre budget et à votre mode de vie. Pourquoi choisir Bessancourt ? Accès rapide à la gare pour rejoindre Paris en toute simplicité Proximité des écoles, idéal pour les familles Commerces de proximité pour faciliter votre quotidien Environnement paisible tout en étant bien desservi Faites confiance à Maisons Evolution, votre partenaire de construction pour réaliser la maison de vos rêves ! Pour plus d'informations, contactez-nous dès maintenant pour discuter de votre projet ! Contactez notre agence (Caroline BETHERY : 01-34-18-18-36) pour plus d'informations sur la maison.











