

- Prix
- 537 000 €
Maison neuve • Noisy-le-Grand (93)
- Nom et prix
- Terrain à bâtir () • 537 000 €
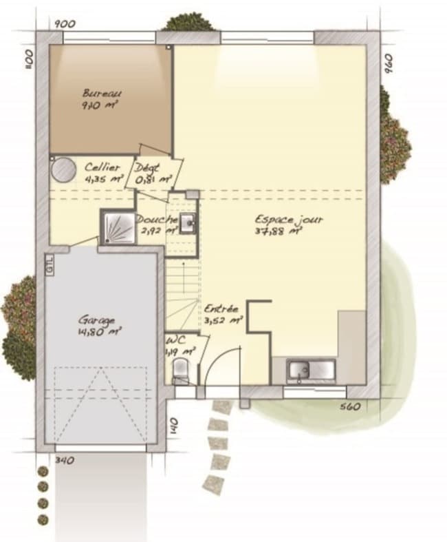
VENTE : maison T6 (98 m²) à Noisy-le-Grand MAISON 6 PIÈCES NEUVE À proximité de la station Noisy-le-Grand-Mont d'Est du RER A (15 min de Paris), votre agence Maisons Balency Saint-Maur-des-Fossés est ravie de vous présenter cette maison de 6 pièces de 98 m² et de 372 m² de terrain en vente à Noisy-le-Grand (93160). Cette maison compte 2 niveaux. Elle compte quatre chambres, une cuisine et une salle de bains. La maison est neuve. Il y a des établissements scolaires du primaire et du secondaire à moins de 10 minutes à pied, tout comme deux crèches. Niveau transports en commun, on trouve les lignes de RER A, E et B ainsi que 26 gares à moins de 10 minutes en voiture. Il y a un bassin de natation, un tennis, des commerces, des boulangeries, trois supermarchés, deux supérettes et quatre boucheries-charcuteries dans les environs. Son prix de vente est de 537 000 €. Contactez notre constructeur (Aurelien MONTANIER : 06-24-66-88-34) pour toute question sur ce bien ou sur les démarches à suivre. Concrétisez vos projets immobiliers avec Maisons Balency Saint-Maur-des-Fossés.











