

- Prix
- 630 000 €
Maison neuve • Chemin du Luzard (77)
- Nom et prix
- Projet de construction d'une maison 145 m² avec terrain à CHAMPS-SUR-MARNE (77) • 630 000 €
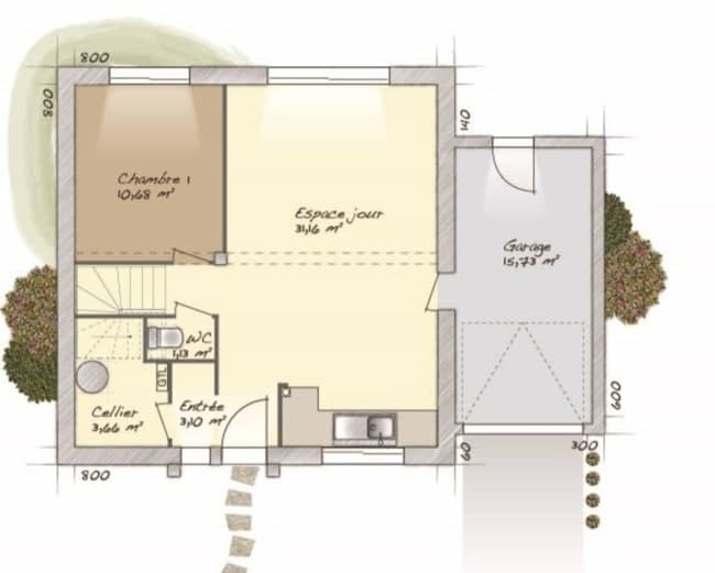
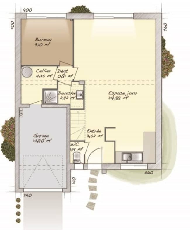
Située dans la commune prisée de Champs-sur-Marne, Projet envisagé cette maison individuelle de 145 m² offre un cadre de vie idéal pour une famille. Elle se compose de quatre chambres, dont une suite parentale avec dressing et salle d'eau, un beau séjour lumineux, une cuisine ouverte, ainsi qu'un garage attenant de 20 m². Le jardin privatif de 420 m² permet de profiter des beaux jours en toute tranquillité. Le quartier résidentiel assure un environnement paisible tout en étant proche des commodités, des écoles et des transports en commun. La gare RER A est accessible en seulement 15 minutes à pied, facilitant les déplacements vers Paris et les environs. Le prix de vente est fixé à 630000 €, honoraires à la charge du vendeur. Les performances énergétiques construction aux normes RE2020, garantissant une bonne efficacité énergétique. Pour plus d'informations contacter pascal au 07.62.77.96.79 Étude gratuite de votre projet de construction ! De nombreux terrains disponibles dans votre secteur. Informations légales : Maisons Sésame, constructeur de maisons individuelles, propose une sélection de terrains en collaboration avec ses partenaires fonciers, sous réserve de disponibilité. Il n’agit pas en tant que mandataire pour la vente de ces terrains. Nos maisons, certifiées NF Habitat et conformes à la réglementation thermique en vigueur, vous garantissent un habitat durable et économe en énergie. Découvrez un large choix de modèles adaptés aux besoins de toute la famille. Informations tarifaires : Les prix indiqués sont donnés à titre indicatif et n’incluent pas les frais annexes (frais de notaire, raccordements, etc.). Les visuels et prix présentés sont non contractuels. Pour plus de détails, consultez nos conditions en agence. N° ORIAS IOBSP 13007108 – RCS Versailles 388 827 426. Cette annonce a été créée et diffusée avec le logiciel VITAHOME. Contactez Pascal BLANCHETOT au 07 62 77 96 79 ou au 01 60 09 18 88 (Maisons Sésame - Agence de Mareuil les Meaux).









