logo de nos-terrains.com

158 maisons neuves à vendre à Ardiege (31)

Résultats de recherche

Maison neuve - Projet de construction d'une maison 105 m² avec terrain à ARDIEGE (31) au prix de 188800€. à ARDIEGE (31), prix 149 800 €
149 800 €
105 m²
1427 €/m²

Maison neuveARDIEGE (31)

Construisons ensemble votre maison dans un environnement calme et agréable à vivre sur ce terrain (apporté par notre partenaire foncier sous réserve de disponibilité), d’une superficie de 1197 m². D'un style épuré, fonctionnel et élégant, cette maison est modifiable et personnalisable comme tous les modèles Villas et Maisons de France. Le modèle UP, présenté ici, dispose d'une surface habitable de 105 m², d'un RDC intégralement dédié à l'espace de vie et comprenant un grand séjour lumineux, agrémenté d'une cuisine ouverte ou traditionnelle avec cellier. L'aménagement intérieur est facilement modulable et de nombreux rangements sont possibles. A l'étage, 4 chambres comprises entre 10 et 11 m² et une salle de bain confortable compose le coin nuit. Avec un process de haute qualité environnementale, Villas et Maisons de France conçoit et construit votre maison sur-mesure tout en réduisant de façon significative son empreinte carbone. RE 2020, étiquette énergie A, tri sélectif et valorisation des déchets sont garantis. Notre label Properméa atteste de la qualité de notre traitement de l’étanchéité à l’air. Vous bénéficierez aussi d'un accompagnement pour l’ensemble de vos démarches, de l’accord de prêt à l’obtention du permis de construire en passant par l’acte authentique d’acquisition du terrain par votre chef de projet. Enfin, notre Contrat de Construction de Maison Individuelle CCMI vous permettra de bénéficier de toutes ses garanties et assurances. Choisissez la sécurité d'un grand nom et la proximité d'une entreprise régionale, contacter votre chef de projet Arnaud MERCIER au 06 20 74 42 73, spécialiste de la Maison Individuelle. Prix avec assurance dommages-ouvrage comprise, VRD non compris, terrain viabilisé, frais de notaire non compris, frais divers non compris. Terrain sélectionné et vu pour vous sous réserve de disponibilité et au prix indiqué par notre partenaire foncier. Plans contractuels, visuels non contractuels. Cette annonce a été créée et diffusée avec le logiciel VITAHOME. Contactez Arnaud MERCIER au 06 20 74 42 73 ou au 05 34 48 00 00 (Villas et Maisons de France).

Proposé par VILLAS ET MAISONS DE FRANCE

Maison neuve - Projet de construction d'une maison 88 m² avec terrain à ARDIEGE (31) au prix de 174700€. à ARDIEGE (31), prix 135 700 €
135 700 €
88 m²
1542 €/m²

Maison neuveARDIEGE (31)

Construisons ensemble votre maison dans un environnement calme et agréable à vivre sur ce terrain (apporté par notre partenaire foncier sous réserve de disponibilité), d’une superficie de 1197 m². D'un style épuré, fonctionnel et élégant, cette maison est modifiable et personnalisable comme tous les modèles Villas et Maisons de France. Le modèle UP, présenté ici, dispose d'une surface habitable de 88 m², d'un RDC intégralement dédié à l'espace de vie et comprenant un grand séjour lumineux, agrémenté d'une cuisine ouverte ou traditionnelle avec cellier accolé. L'aménagement intérieur est facilement modulable et de nombreux rangements sont possibles. A l'étage, 3 chambres de 10 à 12 m² et une salle de bain confortable composent le coin nuit. Avec un process de haute qualité environnementale, Villas et Maisons de France conçoit et construit votre maison sur-mesure tout en réduisant de façon significative son empreinte carbone. RE 2020, étiquette énergie A, tri sélectif et valorisation des déchets sont garantis. Notre label Properméa atteste de la qualité de notre traitement de l’étanchéité à l’air. Vous bénéficierez aussi d'un accompagnement pour l’ensemble de vos démarches, de l’accord de prêt à l’obtention du permis de construire en passant par l’acte authentique d’acquisition du terrain par votre chef de projet. Enfin, notre Contrat de Construction de Maison Individuelle CCMI vous permettra de bénéficier de toutes ses garanties et assurances. Choisissez la sécurité d'un grand nom et la proximité d'une entreprise régionale, contacter votre chef de projet Arnaud MERCIER au 06 20 74 42 73, spécialiste de la Maison Individuelle avec process de haute qualité environnementale en Occitanie. Prix avec assurance dommages-ouvrage comprise, VRD non compris, terrain viabilisé, frais de notaire non compris, frais divers non compris. Terrain sélectionné et vu pour vous sous réserve de disponibilité et au prix indiqué par notre partenaire foncier. Plans contractuels, visuels non contractuels. Cette annonce a été créée et diffusée avec le logiciel VITAHOME. Contactez Arnaud MERCIER au 06 20 74 42 73 ou au 05 34 48 00 00 (Villas et Maisons de France).

Proposé par VILLAS ET MAISONS DE FRANCE

Maison neuve - Projet de construction d'une maison 73 m² avec terrain à ARDIEGE (31) au prix de 156300€. à ARDIEGE (31), prix 117 300 €
117 300 €
73 m²
1607 €/m²

Maison neuveARDIEGE (31)

Nous construisons votre maison sur-mesure dans un environnement calme sur ce terrain (apporté par notre partenaire foncier sous réserve de disponibilité), d’une superficie de 1197 m² situé à ARDIEGE. D'un style sobre mais tendance, cette maison reste modifiable et personnalisable comme tous les modèles Villas et Maisons de France. Dans sa version catalogue, ce modèle dispose de 73 m² de surface habitable. Fonctionnel, son aménagement intérieur comprend un coin nuit avec 2 belles chambres entre 11 et 12m² complétées d'une salle de bain de 4,30 m². La pièce à vivre, lumineuse, de près de 40 m², comprend salon et salle à manger. La cuisine ouverte prolonge ce sentiment de confort et prévoit des rangements significatifs dans le cellier. Notre bureau d’étude spécialisé établit vos plans uniques en nos locaux, sans délai et vous accueille sur rendez-vous pour découvrir les coulisses de la conception de votre maison. Villas et Maisons de France vous apporte la sécurité du Contrat de Construction de Maison Individuelle (CCMI), en vous délivrant Garantie de Livraison, Assurance Décennale et Dommages Ouvrage, Garantie de Parfait Achèvement et de Bon Fonctionnement. Nos équipes commerciales vous accompagnent pour l’accord de prêt, l’obtention du permis de construire et l’acte authentique d’acquisition du terrain. Enfin, constructeur certifié Properméa et avec un process de haute qualité environnementale, Villas et Maisons de France se distingue par d'excellentes performances environnementales et énergétiques en respectant un cahier des charges contraignant ! Faites le choix de la qualité, de la personnalisation et de l'innovation, Contactez Arnaud MERCIER au 06 20 74 42 73 . Prix avec assurance dommages-ouvrage comprise, VRD non compris, terrain viabilisé, frais de notaire non compris, frais divers non compris. Terrain sélectionné et vu pour vous sous réserve de disponibilité et au prix indiqué par notre partenaire foncier. Plans contractuels, visuels non contractuels. Cette annonce a été créée et diffusée avec le logiciel VITAHOME. Contactez Arnaud MERCIER au 06 20 74 42 73 ou au 05 34 48 00 00 (Villas et Maisons de France).

Proposé par VILLAS ET MAISONS DE FRANCE

Maison neuve - Projet de construction d'une maison 88 m² avec terrain à MARTRES-DE-RIVIERE (31) au prix de 174700€. à MARTRES-DE-RIVIERE (31), prix 135 700 €
135 700 €
88 m²
1542 €/m²

Maison neuveMARTRES-DE-RIVIERE (31)

Construisons ensemble votre maison dans un environnement calme et agréable à vivre sur ce terrain (apporté par notre partenaire foncier sous réserve de disponibilité), d’une superficie de 2571 m². D'un style épuré, fonctionnel et élégant, cette maison est modifiable et personnalisable comme tous les modèles Villas et Maisons de France. Le modèle UP, présenté ici, dispose d'une surface habitable de 88 m², d'un RDC intégralement dédié à l'espace de vie et comprenant un grand séjour lumineux, agrémenté d'une cuisine ouverte ou traditionnelle avec cellier accolé. L'aménagement intérieur est facilement modulable et de nombreux rangements sont possibles. A l'étage, 3 chambres de 10 à 12 m² et une salle de bain confortable composent le coin nuit. Avec un process de haute qualité environnementale, Villas et Maisons de France conçoit et construit votre maison sur-mesure tout en réduisant de façon significative son empreinte carbone. RE 2020, étiquette énergie A, tri sélectif et valorisation des déchets sont garantis. Notre label Properméa atteste de la qualité de notre traitement de l’étanchéité à l’air. Vous bénéficierez aussi d'un accompagnement pour l’ensemble de vos démarches, de l’accord de prêt à l’obtention du permis de construire en passant par l’acte authentique d’acquisition du terrain par votre chef de projet. Enfin, notre Contrat de Construction de Maison Individuelle CCMI vous permettra de bénéficier de toutes ses garanties et assurances. Choisissez la sécurité d'un grand nom et la proximité d'une entreprise régionale, contacter votre chef de projet Arnaud MERCIER au 06 20 74 42 73, spécialiste de la Maison Individuelle avec process de haute qualité environnementale en Occitanie. Prix avec assurance dommages-ouvrage comprise, VRD non compris, terrain viabilisé, frais de notaire non compris, frais divers non compris. Terrain sélectionné et vu pour vous sous réserve de disponibilité et au prix indiqué par notre partenaire foncier. Plans contractuels, visuels non contractuels. Cette annonce a été créée et diffusée avec le logiciel VITAHOME. Contactez Arnaud MERCIER au 06 20 74 42 73 ou au 05 34 48 00 00 (Villas et Maisons de France).

Proposé par VILLAS ET MAISONS DE FRANCE

Maison neuve - Projet de construction d'une maison 73 m² avec terrain à MARTRES-DE-RIVIERE (31) au prix de 156300€. à MARTRES-DE-RIVIERE (31), prix 117 300 €
117 300 €
73 m²
1607 €/m²

Maison neuveMARTRES-DE-RIVIERE (31)

Nous construisons votre maison sur-mesure dans un environnement calme sur ce terrain (apporté par notre partenaire foncier sous réserve de disponibilité), d’une superficie de 2571 m² situé à MARTRES-DE-RIVIERE. D'un style sobre mais tendance, cette maison reste modifiable et personnalisable comme tous les modèles Villas et Maisons de France. Dans sa version catalogue, ce modèle dispose de 73 m² de surface habitable. Fonctionnel, son aménagement intérieur comprend un coin nuit avec 2 belles chambres entre 11 et 12m² complétées d'une salle de bain de 4,30 m². La pièce à vivre, lumineuse, de près de 40 m², comprend salon et salle à manger. La cuisine ouverte prolonge ce sentiment de confort et prévoit des rangements significatifs dans le cellier. Notre bureau d’étude spécialisé établit vos plans uniques en nos locaux, sans délai et vous accueille sur rendez-vous pour découvrir les coulisses de la conception de votre maison. Villas et Maisons de France vous apporte la sécurité du Contrat de Construction de Maison Individuelle (CCMI), en vous délivrant Garantie de Livraison, Assurance Décennale et Dommages Ouvrage, Garantie de Parfait Achèvement et de Bon Fonctionnement. Nos équipes commerciales vous accompagnent pour l’accord de prêt, l’obtention du permis de construire et l’acte authentique d’acquisition du terrain. Enfin, constructeur certifié Properméa et avec un process de haute qualité environnementale, Villas et Maisons de France se distingue par d'excellentes performances environnementales et énergétiques en respectant un cahier des charges contraignant ! Faites le choix de la qualité, de la personnalisation et de l'innovation, Contactez Arnaud MERCIER au 06 20 74 42 73 . Prix avec assurance dommages-ouvrage comprise, VRD non compris, terrain viabilisé, frais de notaire non compris, frais divers non compris. Terrain sélectionné et vu pour vous sous réserve de disponibilité et au prix indiqué par notre partenaire foncier. Plans contractuels, visuels non contractuels. Cette annonce a été créée et diffusée avec le logiciel VITAHOME. Contactez Arnaud MERCIER au 06 20 74 42 73 ou au 05 34 48 00 00 (Villas et Maisons de France).

Proposé par VILLAS ET MAISONS DE FRANCE

Maison neuve - Projet de construction d'une maison 105 m² avec terrain à LABARTHE-RIVIERE (31) au prix de 181800€. à LABARTHE-RIVIERE (31), prix 149 800 €
149 800 €
105 m²
1427 €/m²

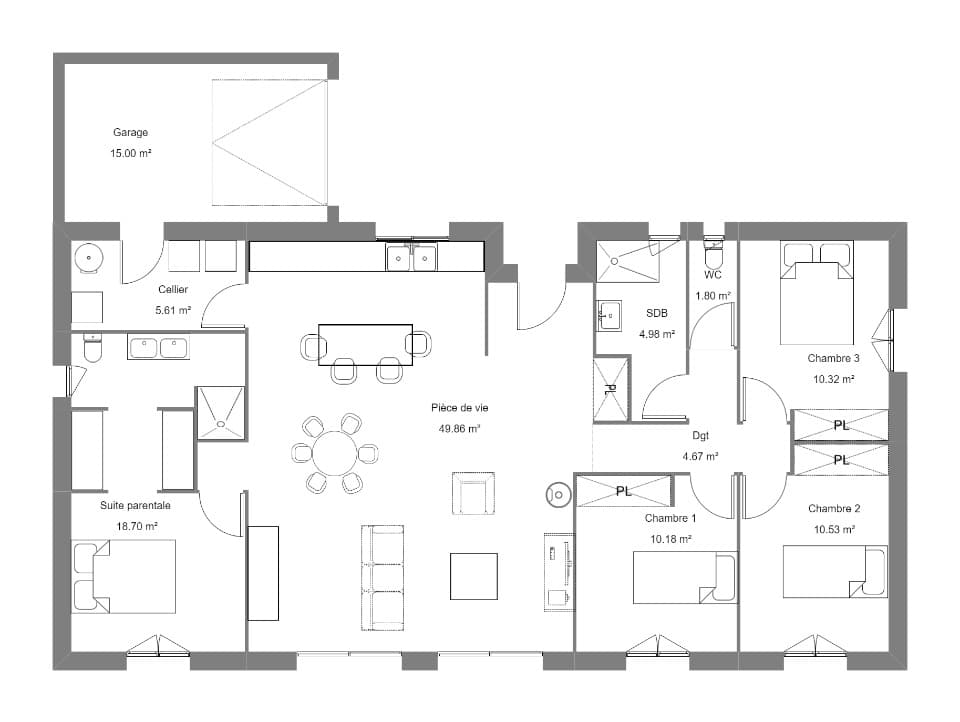
Maison neuveLABARTHE-RIVIERE (31)

Construisons ensemble votre maison dans un environnement calme et agréable à vivre sur ce terrain (apporté par notre partenaire foncier sous réserve de disponibilité), d’une superficie de 1650 m². D'un style épuré, fonctionnel et élégant, cette maison est modifiable et personnalisable comme tous les modèles Villas et Maisons de France. Le modèle UP, présenté ici, dispose d'une surface habitable de 105 m², d'un RDC intégralement dédié à l'espace de vie et comprenant un grand séjour lumineux, agrémenté d'une cuisine ouverte ou traditionnelle avec cellier. L'aménagement intérieur est facilement modulable et de nombreux rangements sont possibles. A l'étage, 4 chambres comprises entre 10 et 11 m² et une salle de bain confortable compose le coin nuit. Avec un process de haute qualité environnementale, Villas et Maisons de France conçoit et construit votre maison sur-mesure tout en réduisant de façon significative son empreinte carbone. RE 2020, étiquette énergie A, tri sélectif et valorisation des déchets sont garantis. Notre label Properméa atteste de la qualité de notre traitement de l’étanchéité à l’air. Vous bénéficierez aussi d'un accompagnement pour l’ensemble de vos démarches, de l’accord de prêt à l’obtention du permis de construire en passant par l’acte authentique d’acquisition du terrain par votre chef de projet. Enfin, notre Contrat de Construction de Maison Individuelle CCMI vous permettra de bénéficier de toutes ses garanties et assurances. Choisissez la sécurité d'un grand nom et la proximité d'une entreprise régionale, contacter votre chef de projet Bulent COSKUN au 06 12 29 23 50, spécialiste de la Maison Individuelle. Prix avec assurance dommages-ouvrage comprise, VRD non compris, terrain viabilisé, frais de notaire non compris, frais divers non compris. Terrain sélectionné et vu pour vous sous réserve de disponibilité et au prix indiqué par notre partenaire foncier. Plans contractuels, visuels non contractuels. Cette annonce a été créée et diffusée avec le logiciel VITAHOME. Contactez Bulent COSKUN au 06 12 29 23 50 ou au 05 34 48 00 00 (Villas et Maisons de France).

Proposé par VILLAS ET MAISONS DE FRANCE

Maison neuve - Projet de construction d'une maison 88 m² avec terrain à LABARTHE-RIVIERE (31) au prix de 167700€. à LABARTHE-RIVIERE (31), prix 135 700 €
135 700 €
88 m²
1542 €/m²

Maison neuveLABARTHE-RIVIERE (31)

Construisons ensemble votre maison dans un environnement calme et agréable à vivre sur ce terrain (apporté par notre partenaire foncier sous réserve de disponibilité), d’une superficie de 1650 m². D'un style épuré, fonctionnel et élégant, cette maison est modifiable et personnalisable comme tous les modèles Villas et Maisons de France. Le modèle UP, présenté ici, dispose d'une surface habitable de 88 m², d'un RDC intégralement dédié à l'espace de vie et comprenant un grand séjour lumineux, agrémenté d'une cuisine ouverte ou traditionnelle avec cellier accolé. L'aménagement intérieur est facilement modulable et de nombreux rangements sont possibles. A l'étage, 3 chambres de 10 à 12 m² et une salle de bain confortable composent le coin nuit. Avec un process de haute qualité environnementale, Villas et Maisons de France conçoit et construit votre maison sur-mesure tout en réduisant de façon significative son empreinte carbone. RE 2020, étiquette énergie A, tri sélectif et valorisation des déchets sont garantis. Notre label Properméa atteste de la qualité de notre traitement de l’étanchéité à l’air. Vous bénéficierez aussi d'un accompagnement pour l’ensemble de vos démarches, de l’accord de prêt à l’obtention du permis de construire en passant par l’acte authentique d’acquisition du terrain par votre chef de projet. Enfin, notre Contrat de Construction de Maison Individuelle CCMI vous permettra de bénéficier de toutes ses garanties et assurances. Choisissez la sécurité d'un grand nom et la proximité d'une entreprise régionale, contacter votre chef de projet Bulent COSKUN au 06 12 29 23 50, spécialiste de la Maison Individuelle avec process de haute qualité environnementale en Occitanie. Prix avec assurance dommages-ouvrage comprise, VRD non compris, terrain viabilisé, frais de notaire non compris, frais divers non compris. Terrain sélectionné et vu pour vous sous réserve de disponibilité et au prix indiqué par notre partenaire foncier. Plans contractuels, visuels non contractuels. Cette annonce a été créée et diffusée avec le logiciel VITAHOME. Contactez Bulent COSKUN au 06 12 29 23 50 ou au 05 34 48 00 00 (Villas et Maisons de France).

Proposé par VILLAS ET MAISONS DE FRANCE

Maison neuve - Projet de construction d'une maison 73 m² avec terrain à LABARTHE-RIVIERE (31) au prix de 149300€. à LABARTHE-RIVIERE (31), prix 117 300 €
117 300 €
73 m²
1607 €/m²

Maison neuveLABARTHE-RIVIERE (31)

Nous construisons votre maison sur-mesure dans un environnement calme sur ce terrain (apporté par notre partenaire foncier sous réserve de disponibilité), d’une superficie de 1650 m² situé à LABARTHE-RIVIERE. D'un style sobre mais tendance, cette maison reste modifiable et personnalisable comme tous les modèles Villas et Maisons de France. Dans sa version catalogue, ce modèle dispose de 73 m² de surface habitable. Fonctionnel, son aménagement intérieur comprend un coin nuit avec 2 belles chambres entre 11 et 12m² complétées d'une salle de bain de 4,30 m². La pièce à vivre, lumineuse, de près de 40 m², comprend salon et salle à manger. La cuisine ouverte prolonge ce sentiment de confort et prévoit des rangements significatifs dans le cellier. Notre bureau d’étude spécialisé établit vos plans uniques en nos locaux, sans délai et vous accueille sur rendez-vous pour découvrir les coulisses de la conception de votre maison. Villas et Maisons de France vous apporte la sécurité du Contrat de Construction de Maison Individuelle (CCMI), en vous délivrant Garantie de Livraison, Assurance Décennale et Dommages Ouvrage, Garantie de Parfait Achèvement et de Bon Fonctionnement. Nos équipes commerciales vous accompagnent pour l’accord de prêt, l’obtention du permis de construire et l’acte authentique d’acquisition du terrain. Enfin, constructeur certifié Properméa et avec un process de haute qualité environnementale, Villas et Maisons de France se distingue par d'excellentes performances environnementales et énergétiques en respectant un cahier des charges contraignant ! Faites le choix de la qualité, de la personnalisation et de l'innovation, Contactez Bulent COSKUN au 06 12 29 23 50 . Prix avec assurance dommages-ouvrage comprise, VRD non compris, terrain viabilisé, frais de notaire non compris, frais divers non compris. Terrain sélectionné et vu pour vous sous réserve de disponibilité et au prix indiqué par notre partenaire foncier. Plans contractuels, visuels non contractuels. Cette annonce a été créée et diffusée avec le logiciel VITAHOME. Contactez Bulent COSKUN au 06 12 29 23 50 ou au 05 34 48 00 00 (Villas et Maisons de France).

Proposé par VILLAS ET MAISONS DE FRANCE

Maison neuve - Projet de construction d'une maison 88 m² avec terrain à LABARTHE-RIVIERE (31) au prix de 172700€. à LABARTHE-RIVIERE (31), prix 135 700 €
135 700 €
88 m²
1542 €/m²

Maison neuveLABARTHE-RIVIERE (31)

Construisons ensemble votre maison dans un environnement calme et agréable à vivre sur ce terrain (apporté par notre partenaire foncier sous réserve de disponibilité), d’une superficie de 1650 m². D'un style épuré, fonctionnel et élégant, cette maison est modifiable et personnalisable comme tous les modèles Villas et Maisons de France. Le modèle UP, présenté ici, dispose d'une surface habitable de 88 m², d'un RDC intégralement dédié à l'espace de vie et comprenant un grand séjour lumineux, agrémenté d'une cuisine ouverte ou traditionnelle avec cellier accolé. L'aménagement intérieur est facilement modulable et de nombreux rangements sont possibles. A l'étage, 3 chambres de 10 à 12 m² et une salle de bain confortable composent le coin nuit. Avec un process de haute qualité environnementale, Villas et Maisons de France conçoit et construit votre maison sur-mesure tout en réduisant de façon significative son empreinte carbone. RE 2020, étiquette énergie A, tri sélectif et valorisation des déchets sont garantis. Notre label Properméa atteste de la qualité de notre traitement de l’étanchéité à l’air. Vous bénéficierez aussi d'un accompagnement pour l’ensemble de vos démarches, de l’accord de prêt à l’obtention du permis de construire en passant par l’acte authentique d’acquisition du terrain par votre chef de projet. Enfin, notre Contrat de Construction de Maison Individuelle CCMI vous permettra de bénéficier de toutes ses garanties et assurances. Choisissez la sécurité d'un grand nom et la proximité d'une entreprise régionale, contacter votre chef de projet Bulent COSKUN au 06 12 29 23 50, spécialiste de la Maison Individuelle avec process de haute qualité environnementale en Occitanie. Prix avec assurance dommages-ouvrage comprise, VRD non compris, terrain viabilisé, frais de notaire non compris, frais divers non compris. Terrain sélectionné et vu pour vous sous réserve de disponibilité et au prix indiqué par notre partenaire foncier. Plans contractuels, visuels non contractuels. Cette annonce a été créée et diffusée avec le logiciel VITAHOME. Contactez Bulent COSKUN au 06 12 29 23 50 ou au 05 34 48 00 00 (Villas et Maisons de France).

Proposé par VILLAS ET MAISONS DE FRANCE

Maison neuve - Projet de construction d'une maison 73 m² avec terrain à LABARTHE-RIVIERE (31) au prix de 154300€. à LABARTHE-RIVIERE (31), prix 117 300 €
117 300 €
73 m²
1607 €/m²

Maison neuveLABARTHE-RIVIERE (31)

Nous construisons votre maison sur-mesure dans un environnement calme sur ce terrain (apporté par notre partenaire foncier sous réserve de disponibilité), d’une superficie de 1650 m² situé à LABARTHE-RIVIERE. D'un style sobre mais tendance, cette maison reste modifiable et personnalisable comme tous les modèles Villas et Maisons de France. Dans sa version catalogue, ce modèle dispose de 73 m² de surface habitable. Fonctionnel, son aménagement intérieur comprend un coin nuit avec 2 belles chambres entre 11 et 12m² complétées d'une salle de bain de 4,30 m². La pièce à vivre, lumineuse, de près de 40 m², comprend salon et salle à manger. La cuisine ouverte prolonge ce sentiment de confort et prévoit des rangements significatifs dans le cellier. Notre bureau d’étude spécialisé établit vos plans uniques en nos locaux, sans délai et vous accueille sur rendez-vous pour découvrir les coulisses de la conception de votre maison. Villas et Maisons de France vous apporte la sécurité du Contrat de Construction de Maison Individuelle (CCMI), en vous délivrant Garantie de Livraison, Assurance Décennale et Dommages Ouvrage, Garantie de Parfait Achèvement et de Bon Fonctionnement. Nos équipes commerciales vous accompagnent pour l’accord de prêt, l’obtention du permis de construire et l’acte authentique d’acquisition du terrain. Enfin, constructeur certifié Properméa et avec un process de haute qualité environnementale, Villas et Maisons de France se distingue par d'excellentes performances environnementales et énergétiques en respectant un cahier des charges contraignant ! Faites le choix de la qualité, de la personnalisation et de l'innovation, Contactez Bulent COSKUN au 06 12 29 23 50 . Prix avec assurance dommages-ouvrage comprise, VRD non compris, terrain viabilisé, frais de notaire non compris, frais divers non compris. Terrain sélectionné et vu pour vous sous réserve de disponibilité et au prix indiqué par notre partenaire foncier. Plans contractuels, visuels non contractuels. Cette annonce a été créée et diffusée avec le logiciel VITAHOME. Contactez Bulent COSKUN au 06 12 29 23 50 ou au 05 34 48 00 00 (Villas et Maisons de France).

Proposé par VILLAS ET MAISONS DE FRANCE

Maison neuve - Terrain à bâtir Clarac (31210) à Clarac (31), prix 226 000 €
226 000 €
115 m²
1965 €/m²

Maison neuveClarac (31)

Cette maison de 115m2 dispose d'une grande pièce de vie centrale de 50 m2 très lumineuse avec ces 2 grandes baies vitrées. Une grande suite parentale avec un dressing et d'une salle d'eau privatise (double vasque, 1 douche italienne et un WC), 3 chambres avec placards intégrées, 1 salle de bain avec baignoire, 1 WC séparé. Un cellier/buanderie communiquant avec le garage. Pour votre projet de construction vous pouvez nous contacter au 06.66.12.13.51. Valérie PUJADE vous accompagnera pour une étude personnalisée.

Proposé par MAISONS BRUNO PETIT MJB - INDRE

Maison neuve - Terrain à bâtir Clarac (31210) à Clarac (31), prix 201 000 €
201 000 €
100 m²
2010 €/m²

Maison neuveClarac (31)

Le charme d'une maison en L de 100m2. Grande de vie ouverte avec cellier/buanderie communiquant. 4 chambres avec placards intégrés, 1 salle de bain avec douche italienne et double vasque, 1 WC séparé. Pour votre projet de construction, vous pouvez nous contacter au 06.66.12.13.51. Valérie PUJADE vous accompagnera dans l'étude de votre projet personnalisée.

Proposé par MAISONS BRUNO PETIT MJB - INDRE


Illustration Maisons neuves en vente à proximité de Ardiege (31)

Maisons neuves en vente à proximité de Ardiege (31)

**Ardiege (Haute-Garonne, 31) : un havre de paix en Occitanie** Située dans le sud-ouest de la France, près de Toulouse, Ardiege est un village paisible du département de la Haute-Garonne. Entouré de collines verdoyantes et de vignobles, il offre un cadre de vie authentique, à seulement 30 minutes de la métropole toulousaine. Son charme rural et sa proximité avec les axes routiers (A68, RN124) en font un lieu idéal pour s’installer. **Optez pour une maison neuve à Ardiege** : profitez d’un cadre de vie préservé, d’un coût immobilier attractif et d’un accès facile aux commodités et emplois de Toulouse.

Autres villes actives à Haute-garonne (31)


Conseils pour l'achat d'un bien immobilier

Découvrez notre sélection de maisons neuves, synonymes de confort moderne et de sérénité. Trouvez votre futur chez-vous.

L'avantage d'une maison neuve

Choisir une maison neuve, c'est bénéficier des dernières normes énergétiques (RE2020) pour des économies durables, de frais de notaire réduits, et des garanties constructeur (parfait achèvement, décennale) pour une tranquillité d'esprit.

Nos types d'annonces

Explorez nos annonces : maisons clés en main prêtes à décorer, ou programmes terrain + maison pour personnaliser certains aspects.