
Maison neuve • Cagny (14)
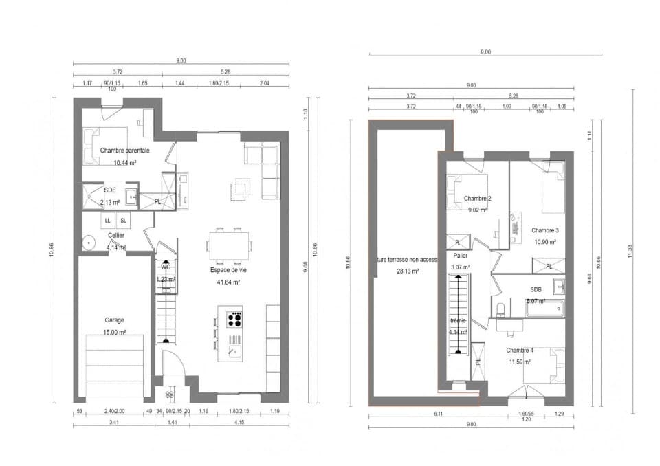
VENTE d'une maison T7 (125 m²) à Cagny PROCHE CENTRE-VILLE - MAISON 7 PIÈCES NEUVE En vente : à 15 km de la Manche et à 9 km de Caen, proche du centre-ville de Cagny (14630), nous vous présentons cette maison de 7 pièces de 125 m². Cette maison possède 2 niveaux. Son intérieur se divise en cinq chambres, une cuisine et trois salles de bains. Cette maison est neuve. Le terrain de la propriété s'étend sur 400 m². Une école primaire est implantée dans la commune. Niveau transports, on trouve la gare Frénouville-Cagny à moins de 10 minutes à pied. L'autoroute A13 et les nationales N814 et N158 sont accessibles à moins de 6 km. Il y a un tennis, deux boulangeries, quatre commerces, une boucherie-charcuterie, une épicerie et un bureau de poste à proximité. Elle est à vendre pour la somme de 388 000 €. Contactez Francois LAMY (06-35-39-35-17) pour toute question sur la maison ou sur les modalités de vente. Maisons Balency Caen est là pour vous accompagner dans tous vos projets immobiliers.
Proposé par MAISONS BALENCY - YVELINES










