

- Prix
- 804 000 €
Maison neuve • Chatou (78)
- Nom et prix
- Terrain à bâtir Chatou (78400) • 804 000 €
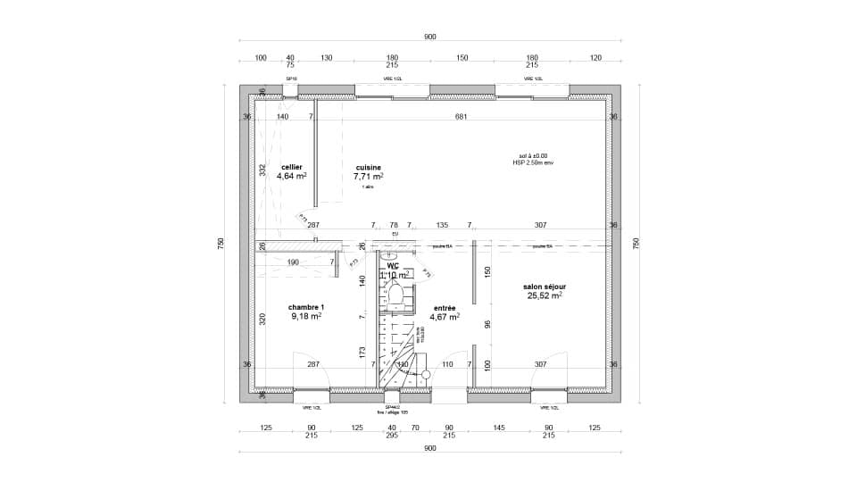
VENTE d'une maison F6 (129 m²) à Chatou IDÉALEMENT SITUÉE - VUE DÉGAGÉE À quelques minutes du RER A (station Chatou-Croissy, 15 min de Paris), nous sommes heureux de vous présenter cette maison de 6 pièces de 129 m² et de 400 m² de terrain avec vue dégagée à vendre idéalement située dans Chatou (78400). Son intérieur se divise en quatre chambres, une cuisine et deux salles de bains. Cette maison comporte 2 niveaux. Elle est neuve. Cette maison est située dans un quartier convoité. On trouve plusieurs écoles (maternelle, élémentaire, primaire et collège) à moins de 10 minutes à pied, tout comme deux structures d'accueil pour les tout-petits. Niveau transports, il y a les lignes A et C du RER ainsi que 47 gares à moins de 10 minutes en voiture. On trouve deux bibliothèques, un tennis, des boulangeries, des commerces, une poissonnerie, deux boucheries-charcuteries et des épiceries dans les environs. Enfin, le marché Avenue Maupassant anime le quartier. Elle est à vendre pour la somme de 804 000 €. Maisons BERVAL bénéficie d'une triple certification NF-HQE-PROPERMEA Contactez notre agence (Marc LE MOEL : 06-52-02-43-99) pour plus de renseignements sur la maison ou sur les modalités de vente. Maisons Berval Rueil-Malmaison vous accompagne dans tous vos projets immobiliers et dans toutes vos démarches.










