

- Prix
- 337 500 €
Maison neuve • Bessancourt (95)
- Nom et prix
- Terrain à bâtir Bessancourt (95550) • 337 500 €
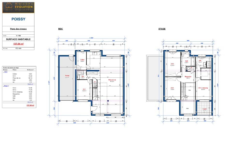
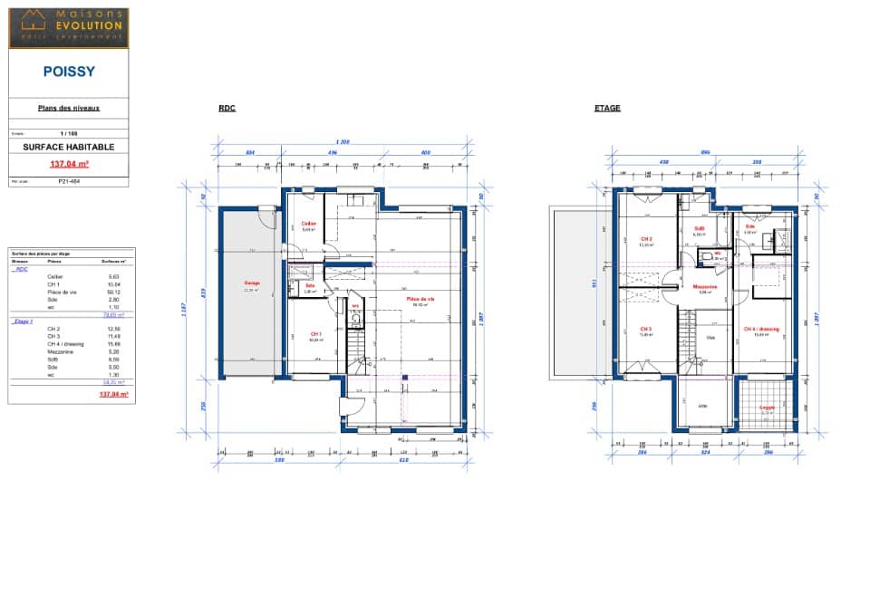
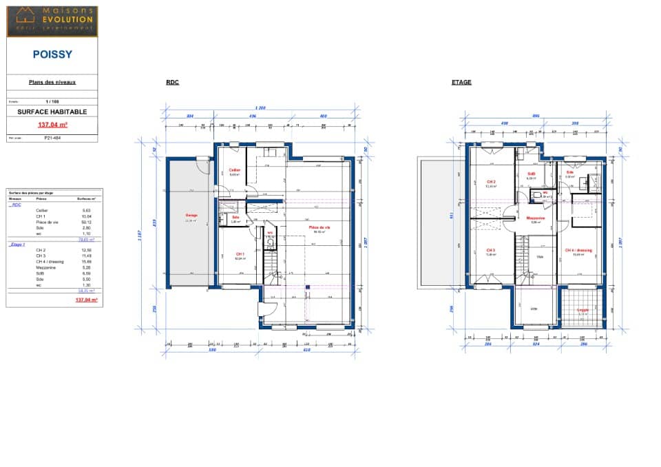
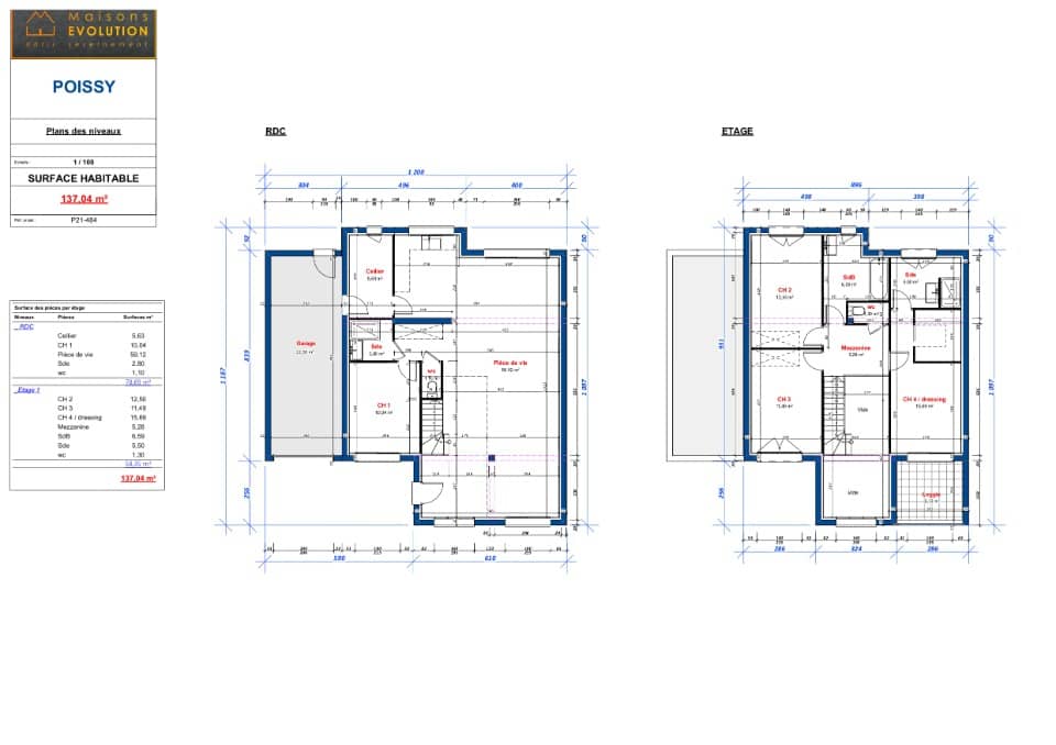
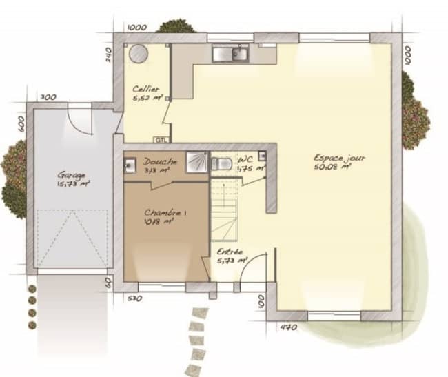
Bessancourt : maison de 6 pièces (108 m²) à vendre PROCHE CENTRE-VILLE - MAISON 6 PIÈCES NEUVE En vente : au pied de la gare (Paris à 35 min par le Transilien H), proche du centre-ville de Bessancourt (95550), Maisons Evolution Cormeilles-en-Parisis vous propose cette maison de 6 pièces de 108 m². Cette maison comporte 2 niveaux. Son intérieur inclut quatre chambres, une cuisine et deux salles de bains. Cette maison est neuve. Le terrain du bien s'étend sur 203 m². Il y a cinq établissements scolaires à moins de 10 minutes à pied, tout comme deux structures d'accueil pour la petite enfance. Côté transports, on trouve la gare Bessancourt dans les environs. Il y a un tennis, des commerces, trois boulangeries, trois supermarchés, une épicerie et un bureau de poste à quelques minutes du logement. Elle est à vendre pour la somme de 337 500 €. N'hésitez pas à prendre contact avec notre agence (Caroline BETHERY : O6 81 87 74 31) pour tout renseignement sur la maison ou sur les démarches à suivre. Maisons Evolution Cormeilles-en-Parisis vous accompagne à toutes les étapes de votre projet et dans tous vos projets immobiliers.











