

- Prix
- 168 498 €
Maison neuve • ECOUEN (95)
- Nom et prix
- Projet de construction d'une maison 117 m² avec terrain à ECOUEN (95) • 168 498 €
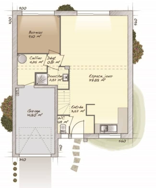
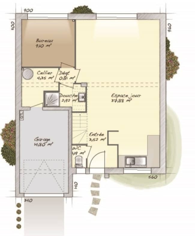
A ECOUEN sur un terrain de 634 m², MAISONS SESAME vous propose de réaliser cette maison neuve d'une surface de 117 m² habitables avec 3 chambres. Le modèle SAPHIR 120 est une maison de 117 m², offrant un design élégant, accentué par son fronton sur la façade qui lui confère un style à la fois raffiné et accueillant. Au rez-de-chaussée, vous trouverez un grand séjour lumineux, une cuisine ouverte, ainsi qu'un bureau, parfait pour ceux qui souhaitent travailler de chez eux. Un WC séparé complète cet espace pratique et fonctionnel. À l’étage, la maison dispose de 3 chambres spacieuses, une salle de bains moderne et un dressing partagé, offrant ainsi un confort optimal pour toute la famille. Le SAPHIR 120 combine élégance, fonctionnalité et confort, pour une maison adaptée aux besoins de la vie moderne. MAISONS SÉSAME vous propose les prestations suivantes : - Plans des maisons modulables et adaptables selon vos besoins et les spécificités de votre terrain - Large choix de systèmes de chauffage performants et économes en énergie - Sélection de matériaux de qualité garantissant confort et durabilité - Accompagnement sur-mesure pour la recherche et l’acquisition de votre terrain - Construction conforme à la réglementation en vigueur et à la norme RE2020 - Maisons certifiées NF HABITAT, gage de qualité, de performance et de confort Informations du terrain : Idéalement situé pour une vie quotidienne paisible, ce lieu vous offrira l'opportunité de concrétiser votre projet de construction dans un cadre recherché ! proche de toutes comoditées. Demandez une étude gratuite et personnalisée de votre projet de construction ! Étude gratuite de votre projet de construction ! De nombreux terrains disponibles dans votre secteur. Informations légales : Maisons Sésame, constructeur de maisons individuelles, propose une sélection de terrains en collaboration avec ses partenaires fonciers, sous réserve de disponibilité. Il n’agit pas en tant que mandataire pour la vente de ces terrains. Nos maisons, certifiées NF Habitat et conformes à la réglementation thermique en vigueur, vous garantissent un habitat durable et économe en énergie. Découvrez un large choix de modèles adaptés aux besoins de toute la famille. Informations tarifaires : Les prix indiqués sont donnés à titre indicatif et n’incluent pas les frais annexes (frais de notaire, raccordements, etc.). Les visuels et prix présentés sont non contractuels. Pour plus de détails, consultez nos conditions en agence. N° ORIAS IOBSP 13007108 – RCS Versailles 388 867 426. Les informations sur les risques auxquels ce bien est exposé sont disponibles sur le site Géorisques : www.georisques.gouv.fr Cette annonce a été créée et diffusée avec le logiciel VITAHOME. Contactez Christophe RIBEIRO au 06 58 91 51 35 ou au 01 39 83 27 47 (Maisons Sésame - Agence d'Eaubonne).









