
Maison neuve • SAINT-MARTORY (31)
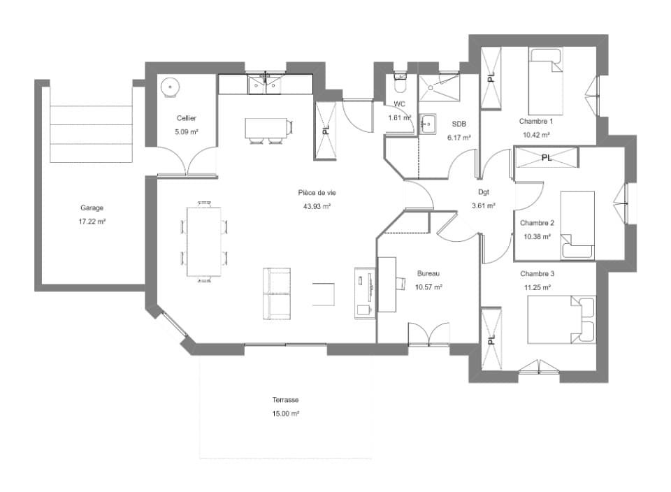
Construisons ensemble votre maison dans un environnement calme et agréable à vivre sur ce terrain (apporté par notre partenaire foncier sous réserve de disponibilité), d’une superficie de 2000 m². D'un style épuré, fonctionnel et élégant, cette maison est modifiable et personnalisable comme tous les modèles Villas et Maisons de France. Le modèle UP, présenté ici, dispose d'une surface habitable de 88 m², d'un RDC intégralement dédié à l'espace de vie et comprenant un grand séjour lumineux, agrémenté d'une cuisine ouverte ou traditionnelle avec cellier accolé. L'aménagement intérieur est facilement modulable et de nombreux rangements sont possibles. A l'étage, 3 chambres de 10 à 12 m² et une salle de bain confortable composent le coin nuit. Avec un process de haute qualité environnementale, Villas et Maisons de France conçoit et construit votre maison sur-mesure tout en réduisant de façon significative son empreinte carbone. RE 2020, étiquette énergie A, tri sélectif et valorisation des déchets sont garantis. Notre label Properméa atteste de la qualité de notre traitement de l’étanchéité à l’air. Vous bénéficierez aussi d'un accompagnement pour l’ensemble de vos démarches, de l’accord de prêt à l’obtention du permis de construire en passant par l’acte authentique d’acquisition du terrain par votre chef de projet. Enfin, notre Contrat de Construction de Maison Individuelle CCMI vous permettra de bénéficier de toutes ses garanties et assurances. Choisissez la sécurité d'un grand nom et la proximité d'une entreprise régionale, contacter votre chef de projet Ludovic RAYMOND au 07 60 04 09 09, spécialiste de la Maison Individuelle avec process de haute qualité environnementale en Occitanie. Prix avec assurance dommages-ouvrage comprise, VRD non compris, terrain viabilisé, frais de notaire non compris, frais divers non compris. Terrain sélectionné et vu pour vous sous réserve de disponibilité et au prix indiqué par notre partenaire foncier. Plans contractuels, visuels non contractuels. Cette annonce a été créée et diffusée avec le logiciel VITAHOME. Contactez Ludovic RAYMOND au 07 60 04 09 09 ou au 05 34 48 00 00 (Villas et Maisons de France).
Proposé par VILLAS ET MAISONS DE FRANCE










