

- Prix
- 172 000 €
Maison neuve • Champniers (16)
- Nom et prix
- Terrain à bâtir () • 172 000 €
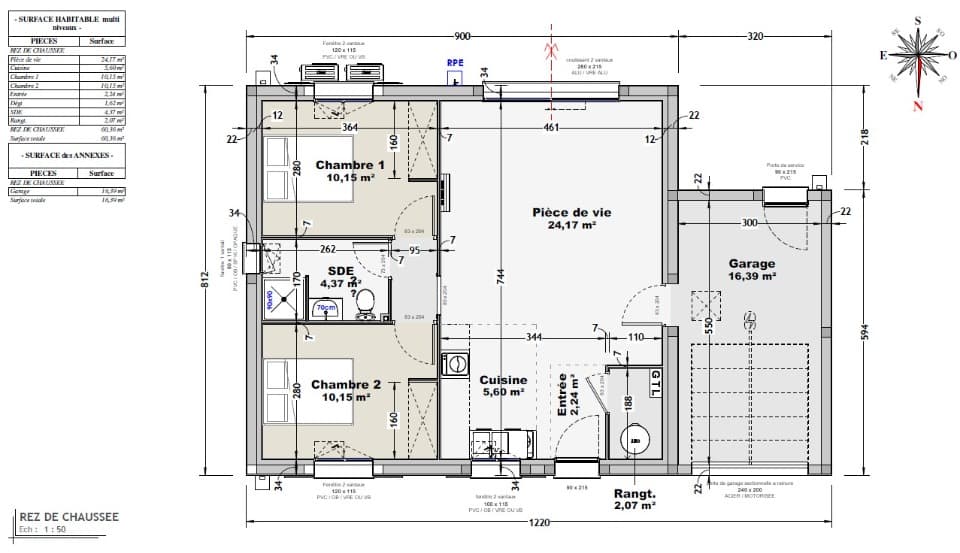
VENTE d'une maison F3 (60 m²) à Champniers EMPLACEMENT PRIVILÉGI- MAISON 3 PIÈCES NEUVE En vente : localisée à quelques kilomètres d'Angoulême, bénéficiant d'un emplacement privilégié dans Champniers (16430), nous vous proposons cette maison de 3 pièces de plain-pied de 60 m². Conçue de plain-pied, elle offre deux chambres, une cuisine et une salle de bains. Cette maison est neuve. Le terrain du bien est de 1 137 m². Ce bien se situe dans un quartier recherché. Il y a l'École Maternelle Bois Villars et l'École Élémentaire du Puy de Nelle à moins de 10 minutes à pied. Niveau transports en commun, on trouve les gares Ruelle-sur-Touvre et Angoulême à moins de 10 minutes en voiture. Les nationales N10 et N141 sont accessibles à moins de 3 km. Il y a un tennis, une bibliothèque, deux boulangeries, un commerce, un bureau de poste et une épicerie à proximité de la maison. Il est proposé à l'achat pour 172 000 €. Contactez notre agence (Christophe VINET : 06-08-02-38-95) pour toute information sur la maison. Bermax Construction Saint-Yrieix-sur-Charente vous accompagne à toutes les étapes de l'achat et dans tous vos projets immobiliers.










