

- Prix
- 518 000 €
Maison neuve • Servon (77)
- Nom et prix
- Terrain à bâtir Servon (77170) • 518 000 €
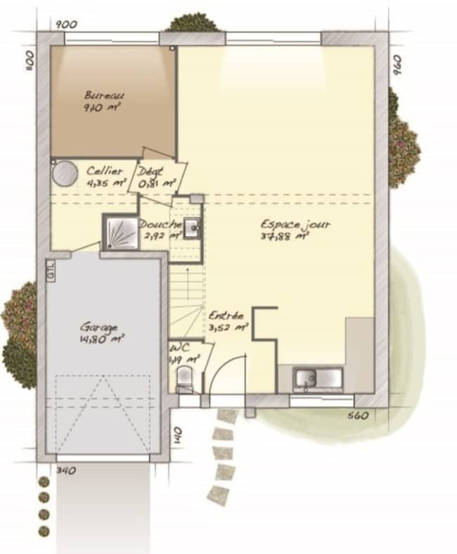
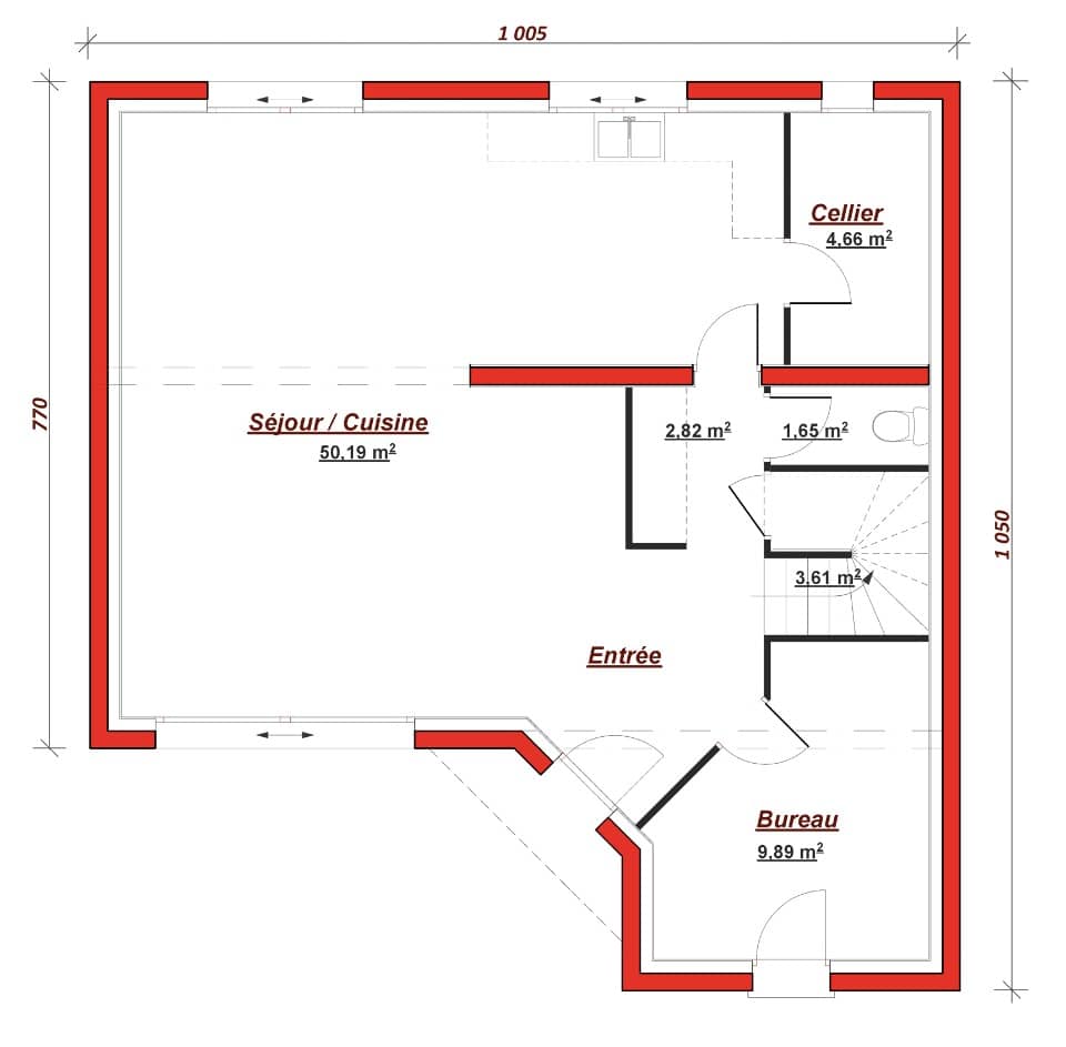
Contactez notre agence MAISONS BALENCY Moret-Loing-et-Orvanne au 06/30/47/58/05 et découvrez la maison de vos rêves à construire avec notre offre exclusive !! Imaginez vous dans un espace moderne, spacieux et personnalisé, conçu spécialement selon vos goûts et besoins. Que vous recherchiez une maison contemporaine, traditionnelle ou écologique, notre équipe d'experts en construction est là pour réaliser vos souhaits. Choisir MAISONS BALENCY c'est opter pour une équipe qui vous accompagne dans toutes les étapes de l'achat de votre projet immobilier. Avec notre processus de construction, vous serez impliqué à chaque étape, de la conception à la remise des clés. Notre équipe qualifiée vous accompagnera tout au long du projet, en veillant à ce que chaque détail soit pris en compte pour créer une maison qui vous ressemble. Profitez également de notre large choix de matériaux de qualité supérieure, garantissant une construction solide et durable. De plus, notre engagement envers l'efficacité énergétique vous permettra de réaliser des économies sur vos factures tout en préservant l'environnement. Ne manquez pas cette occasion unique de construire la maison de vos rêves. Contactez nous dès maintenant au 06/30/47/58/05 pour discuter de votre projet et commencer à transformer vos idées en réalité. Votre maison personnalisée vous attend !!Contactez notre agence MAISONS BALENCY Moret-Loing-et-Orvanne au 06/30/47/58/05.











