

- Prix
- 238 500 €
Maison neuve • Soues (65)
- Nom et prix
- Terrain à bâtir Soues (65430) • 238 500 €
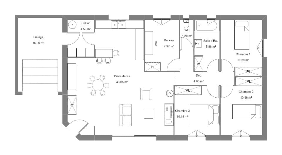
VENTE : maison F5 (100 m²) à Soues IDÉALEMENT SITUÉE - MAISON 5 PIÈCES NEUVE En vente : localisée à 5 km de Tarbes, idéalement située dans Soues (65430), Maisons Bruno Petit GHPA Juillan vous présente cette maison de 5 pièces de plain-pied de 100 m² et de 550 m² de terrain. Conçue de plain-pied, elle offre trois chambres, un bureau, une cuisine et une salle de bains. La maison est neuve. Cette propriété se trouve dans un quartier prisé. Il y a des écoles primaires à moins de 10 minutes à pied et, parmi lesquelles l'École Élémentaire Barrouquere Teilh. Niveau transports, on trouve la gare Tarbes à moins de 10 minutes en voiture. L'autoroute A64 est accessible à 1 km. Il y a un tennis, deux boulangeries, un commerce, une pharmacie, une épicerie, un bureau de poste et deux boucheries-charcuteries à quelques minutes à peine. Son prix de vente est de 238 500 €. Contactez Vincent CAUSSIEU (tél : 06-10-82-28-65) pour obtenir de plus amples renseignements sur la maison ou sur les démarches à suivre. Maisons Bruno Petit GHPA Juillan vous accompagne à toutes les étapes de votre projet et dans tous vos projets immobiliers.