

- Prix
- 145 624 €
Maison neuve • NOISY-LE-GRAND (93)
- Nom et prix
- Projet de construction d'une maison 87 m² avec terrain à NOISY-LE-GRAND (93) • 145 624 €
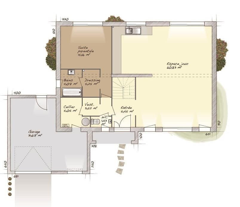
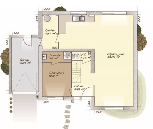
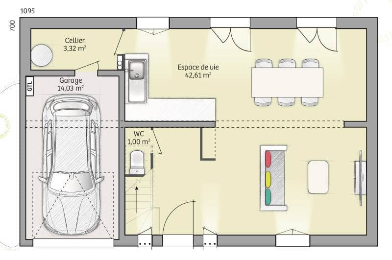
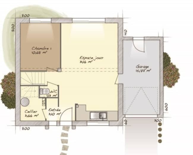
A NOISY-LE-GRAND sur un terrain de 250 m², Andy chez MAISONS SESAME 06/24/17/71/87 vous propose de réaliser cette maison neuve d'une surface de 87 m² habitables avec 3 chambres. Le modèle CORNALINE est une maison de 87 m², parfaitement agencée pour offrir un espace de vie lumineux et fonctionnel. Le rez-de-chaussée comprend un grand séjour, prolongé par une cuisine ouverte, créant une atmosphère conviviale et fluide. Un WC séparé est également présent pour plus de praticité. À l’étage, vous trouverez 3 chambres spacieuses, ainsi qu’une salle de bain équipée d’une baignoire et d’une fenêtre, offrant tout le confort nécessaire à la vie familiale. Le modèle CORNALINE comprend également un garage, offrant un espace de rangement ou de stationnement supplémentaire. Avec son architecture contemporaine, cette maison s’adapte à tous les environnements, tout en garantissant un confort optimal pour ses occupants. MAISONS SÉSAME vous propose les prestations suivantes : - Plans des maisons modulables et adaptables selon vos besoins et les spécificités de votre terrain - Large choix de systèmes de chauffage performants et économes en énergie - Sélection de matériaux de qualité garantissant confort et durabilité - Accompagnement sur-mesure pour la recherche et l’acquisition de votre terrain - Construction conforme à la réglementation en vigueur et à la norme RE2020 - Maisons certifiées NF HABITAT, gage de qualité, de performance et de confort Demandez une étude gratuite et personnalisée de votre projet de construction ! Étude gratuite de votre projet de construction ! De nombreux terrains disponibles dans votre secteur. Informations légales : Maisons Sésame, constructeur de maisons individuelles, propose une sélection de terrains en collaboration avec ses partenaires fonciers, sous réserve de disponibilité. Il n’agit pas en tant que mandataire pour la vente de ces terrains. Nos maisons, certifiées NF Habitat et conformes à la réglementation thermique en vigueur, vous garantissent un habitat durable et économe en énergie. Découvrez un large choix de modèles adaptés aux besoins de toute la famille. Informations tarifaires : Les prix indiqués sont donnés à titre indicatif et n’incluent pas les frais annexes (frais de notaire, raccordements, etc.). Les visuels et prix présentés sont non contractuels. Pour plus de détails, consultez nos conditions en agence. N° ORIAS IOBSP 13007108 – RCS Versailles 388 867 426. Les informations sur les risques auxquels ce bien est exposé sont disponibles sur le site Géorisques : www.georisques.gouv.fr Cette annonce a été créée et diffusée avec le logiciel VITAHOME. Contactez Andy DURDON au 06 24 17 71 87 ou au 01 48 19 23 33 (Maisons Sésame - Agence d'Aulnay sous bois).











