

- Prix
- 179 690 €
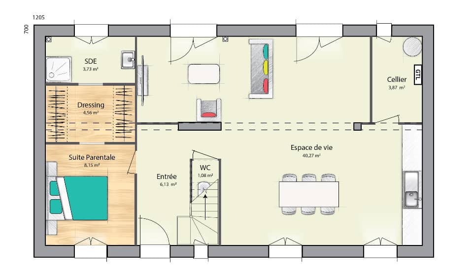
Maison neuve • rue du moutier (78)
- Nom et prix
- Projet de construction d'une maison 110 m² avec terrain à FONTENAY-MAUVOISIN (78) • 179 690 €
A FONTENAY-MAUVOISIN sur un terrain de 457 m², MAISONS SESAME vous propose de réaliser cette maison neuve d'une surface de 110 m² habitables avec 4 chambres. Le modèle AMETHYSTE 110 GI est une maison à deux niveaux de 110 m², offrant un espace de vie agréable et bien agencé. Au rez-de-chaussée, vous trouverez un grand séjour lumineux ouvert sur une cuisine fonctionnelle, créant un espace de vie convivial. Ce niveau est également doté d’un WC et d’un accès au garage de 14 m², offrant un espace de stockage ou de stationnement pratique. À l’étage, les quatre chambres sont idéalement réparties, ainsi qu’une salle de bains comprenant une baignoire. Un beau dégagement à l’étage pourra accueillir un espace bureau pour le télétravail ou bien encore un espace ""boudoir"", offrant ainsi une belle flexibilité d’aménagement. Le modèle AMETHYSTE 110 GI combine ainsi confort, praticité et espace pour répondre aux besoins d’une famille moderne. MAISONS SESAME vous propose les prestations suivantes : - Plan sur-mesure et personnalisé de 2 à 6 chambres - Mode de chauffage au choix - Grands choix d'équipements et de prestations - Matériaux de qualité selon les normes en vigueur - Accompagnement dans le choix et l’acquisition du terrain - Construction conforme à la nouvelle RE 2020 Informations du terrain : 10 minutes de mantes la jolie accès gare et rer E 15 minutes Demandez une étude gratuite et personnalisée de votre projet de construction ! Étude gratuite de votre projet de construction ! De nombreux terrains disponibles dans votre secteur. Informations légales : Maisons Sésame, constructeur de maisons individuelles, propose une sélection de terrains en collaboration avec ses partenaires fonciers, sous réserve de disponibilité. Il n’agit pas en tant que mandataire pour la vente de ces terrains. Nos maisons, certifiées NF Habitat et conformes à la réglementation thermique en vigueur, vous garantissent un habitat durable et économe en énergie. Découvrez un large choix de modèles adaptés aux besoins de toute la famille. Informations tarifaires : Les prix indiqués sont donnés à titre indicatif et n’incluent pas les frais annexes (frais de notaire, raccordements, etc.). Les visuels présentés sont non contractuels. Pour plus de détails, consultez nos conditions en agence. N° ORIAS IOBSP 13007108 – RCS Versailles 388 827 426. Cette annonce a été créée et diffusée avec le logiciel VITAHOME. Contactez Alain BRUNOIS au 06 98 13 24 05 ou au 01 34 97 32 29 (Maisons Sésame - Agence de Mantes la Jolie).











