

- Prix
- 820 000 €
Maison neuve • Bry-sur-Marne (94)
- Nom et prix
- Terrain à bâtir Bry-sur-Marne (94360) • 820 000 €
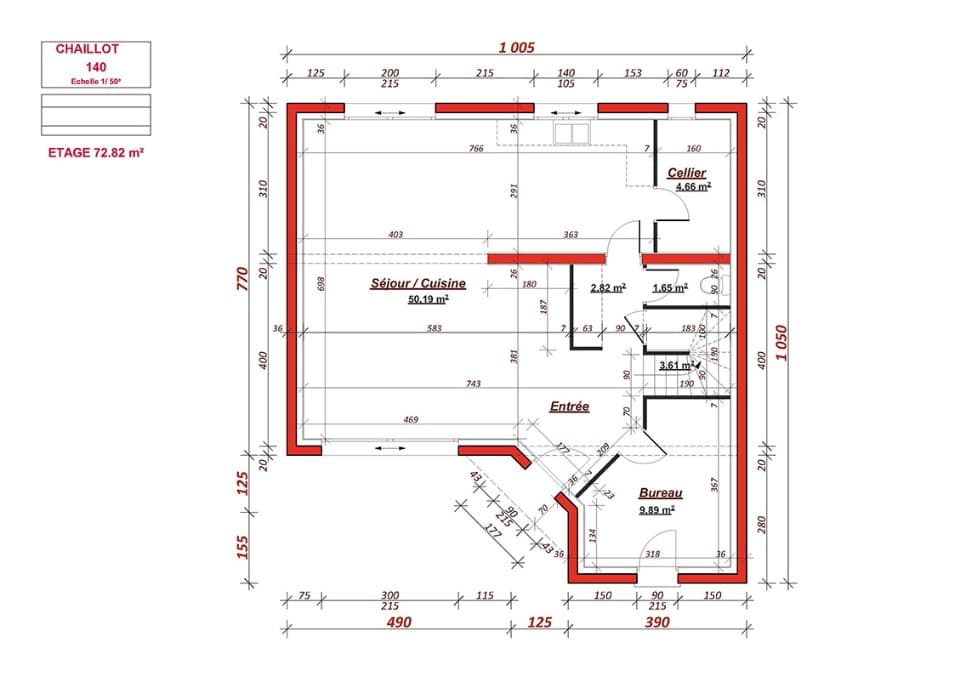
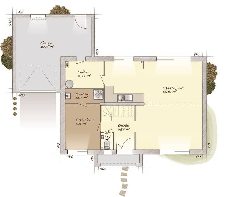
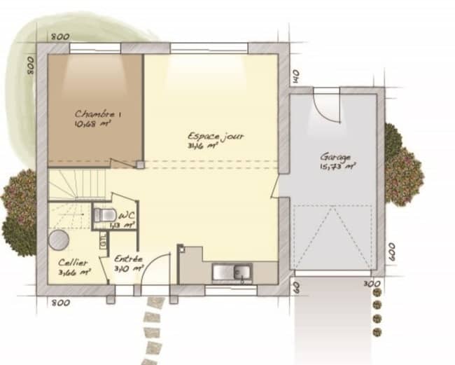
BRY SUR MARNE Cette maison au style néo-rétro et aux volumes généreux possède un double toit, un perron d'entrée, de grandes baies vitrées et un jeu d'enduits original. Cette maison Berval vous offre au rez-de-chaussée un espace salon/séjour, un bureau/chambre d'amis, une cuisine avec un cellier et une vaste entrée avec placard. A l'étage, une mezzanine dessert 3 grandes chambres, une salle de bains ainsi qu'une suite parentale avec salle d'eau. Terrain arboré d'une superficie de 497m2 disposant d'une façade sur rue de presque 12m. 600m à pied de la gare RER Bry sur Marne. Commerces à proximité. Rue calme à sens unique. Le terrain permet la construction d'une piscine. Demandez plus de renseignements auprès de votre conseiller à Bry sur Marne au 06.41.56.29.99 Chez Maisons Berval, nous proposons des constructions sur mesure, de standing, aux dernières normes et NF HQE (Normes françaises haute qualité environnementale)












